Главная Проекты домов Проект большого двухэтажного дома из газобетона с цокольным этажом и подземным гаражом

D3198 Проект большого двухэтажного дома из газобетона с цокольным этажом и подземным гаражом

Сравнить проект В избранное
Проект большого двухэтажного дома из газобетона с цокольным этажом и подземным гаражом / 1
Проект большого двухэтажного дома из газобетона с цокольным этажом и подземным гаражом / 2
Проект большого двухэтажного дома из газобетона с цокольным этажом и подземным гаражом / 1
Проект большого двухэтажного дома из газобетона с цокольным этажом и подземным гаражом / 2
D3198
347 м²
Подготовка проекта:
30 рабочих дней
Стоимость проекта
Купить проект
Задайте вопросы по проекту нашему архитектору
8 (800) 200-28-83
Время работы: пн-вс: с 9:00 до 20:00
Задать вопрос по проекту

Технические характеристики
Общие
Материал стен
Газобетон
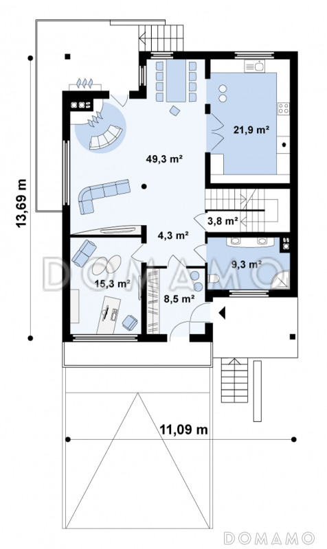
Общая площадь
347 м²
Площадь застройки
136.7 м²
Приведенная площадь
362.25 м²
Количество жилых комнат/спален
5
Этажи
2 этажа
Гараж
Подземный гараж
Количество машин
2
Подвал / цокольный этаж
С окнами
Длина дома
13.69 м
Ширина дома
11.09 м
Высота в коньке
9.0 м
Кровля
Металлочерепица
Облицовка внешних стен
Мокрая штукатурка
Толщина несущих наружных стен
380 мм
Межэтажные перекрытия
Монолитные
Внутренние не несущие перегородки
Газобетонные
Фундамент
Ленточный заглубленный из ФБС
Терраса
Терраса крытая
Дополнительные
Окна
Окна до пола
Камин
Есть
Сауна/баня внутри
Нет
Площадь гостиной
49.3 м²
Площадь кухни
21.9 м²
Количество санузлов
2
Окно в ванной комнате
Есть
Котельная
Есть
Кабинет
Есть
Постирочная
Есть
Спортзал / детский / игровой зал
Есть
Кладовая
2
Балкон / лоджия
Балкон
Длина участка
25.29 м
Ширина участка
18.09 м
Планы помещений
Фасады
Описание проекта
Компания Domamo предлагает проект большого двухэтажного дома из газобетона с цокольным этажом и подземным гаражом D3198. Общая площадь - 347 м2, размер - 13.69х11.09 м. Фундамент - ленточный заглубленный из фбс, кровля - металлочерепица, внешняя отделка - мокрая штукатурка. Для заказа проекта или внесения изменений свяжитесь с нами с помощью форм обратной связи на сайте или по телефону +7 (831) 231-05-02.
Категории проекта: с гаражом для постоянного проживания пенобетон в классическом стиле от 300 до 400 кв.м с террасой из газобетона с цокольным этажом из газобетона с цокольным этажом и гаражом из газобетона готовые из газобетона с гаражом с цокольным этажом двухэтажные двухэтажные с гаражом с котельной двухэтажные из газобетона из газосиликатных блоков двухэтажные из пеноблоков из пеноблоков с гаражом с двухскатной крышей загородные из керамзитобетонных блоков с камином прямоугольные с балконом с барбекю из газобетона с террасой двухэтажные с цокольным этажом из блоков двухэтажные из блоков из блоков с гаражом из пеноблоков с цокольным этажом из пеноблоков с террасой загородные из газобетона Проекты двухэтажных домов с террасой Проекты двухэтажных домов с верандой с террасой и камином с кабинетом с гаражом под одной крышей с гаражом на 2 машины с гаражом и террасой двухэтажные с террасой и гаражом с подземным гаражом с балконом и террасой из пеноблоков загородные с 5 спальнями двухэтажные с камином двухэтажные с двускатной крышей двухэтажные с балконом двухэтажные с балконом и террасой двухэтажные в классическом стиле из газобетона от 300 до 400 кв.м из газобетона с двухскатной крышей из газобетона в классическом стиле из газобетона с балконом из газобетона с котельной из газобетона прямоугольные из газобетона готовые из газобетона с камином из газобетона с большой кухней из газобетона с кабинетом из газобетона для постоянного проживания двухэтажные из газобетона с гаражом двухэтажные из газобетона с террасой двухэтажные из газобетона с камином двухэтажные из газобетона с прачечной двухэтажные из газобетона с кабинетом двухэтажные из газобетона с котельной двухэтажные из газобетона классические двухэтажные из газобетона с двухскатной крышей двухэтажные из газобетона большие двухэтажные из газобетона с подвалом двухэтажные из газобетона с большой гостиной классические для постоянного проживания классические с гаражом классические с гаражом на 2 машины классические с окнами в пол классические с террасой классические готовые классические элитные классические с котельной классические с большой гостиной классические с большой кухней классические с подвалом классические с 2 санузлами классические с прачечной классические с балконом классические прямоугольные классические с камином классические с двухскатной крышей классические с кабинетом из пеноблоков в классическом стиле из пеноблоков с двухскатной крышей из пеноблоков с окнами до пола из пеноблоков прямоугольные из пеноблоков с балконом из пеноблоков для постоянного проживания из пеноблоков готовые из пеноблоков с камином из пеноблоков от 300 до 400 м2 из пеноблоков большие из пеноблоков с большой гостиной из пеноблоков с большой кухней из клееного бруса без гаража Показать все категории Скрыть категории

Похожие проекты
Состав проекта
Входит в стоимость
Цена, руб. Сроки, дней
Комплект архитектурно-строительных чертежей (АС) Входит в стоимость 30 рабочих дней
Готово к продаже
Цена, руб. Сроки, дней
Паспорт рабочего проекта 8 000 ₽ 5 рабочих дней в корзину
Инженерные разделы: ВК + ОВ + ЭО 52 050 ₽ 30 рабочих дней в корзину
Дополнительная копия проекта формата А3 6 500 ₽ 5 рабочих дней в корзину
Электронная копия проекта (скан распечатанной версии) 4 000 ₽ 3 рабочих дня в корзину
Разрабатывается отдельно
Цена, руб. Сроки, дней
Адаптация фундамента (изменение типа фундамента) по запросу 14 рабочих дней
Дизайн интерьера (стоимость от 2200руб. за квад.метр площади) по запросу 30 рабочих дней
Внесение изменений в проект по запросу 20 рабочих дней
Разработка Генплана участка, в масштабе 1:250 7 500 ₽ 15 рабочих дней в корзину
Фэншуй дома 20 000 ₽ 14 рабочих дней в корзину
Фэншуй участка 15 000 ₽ 14 рабочих дней в корзину
Фэншуй полная консультация дом+участок с выездом на объект 100 000 ₽ 30 рабочих дней в корзину
Опции проекта вы можете заказать в корзине при оформлении заказа
Предложения строителей Республика Башкортостан
Отзывы покупателей
Рейтинг покупателей
0 / 5 5 5 1
На основе 1 оценок покупателей
0%
0%
0%
0%
0%
Отзывы о проекте D3198
Отзыв о проекте D3198
Чтобы оставить отзыв, пожалуйста авторизуйтесь.
Подбор строительной компании
Не знаете кому доверить строительство дома? Мы можем помочь! Подберем для вас из сотен наших партнеров несколько компаний с лучшем соотношением цена/качество под конкретно ваш запрос.
Подобрать