Главная Проекты домов Проект увеличенного одноэтажного мансардного дома из кирпича с гаражом и большим фронтонным окном

D3110 Проект увеличенного одноэтажного мансардного дома из кирпича с гаражом и большим фронтонным окном

Сравнить проект В избранное
Проект увеличенного одноэтажного мансардного дома из кирпича с гаражом и большим фронтонным окном / 1
Проект увеличенного одноэтажного мансардного дома из кирпича с гаражом и большим фронтонным окном / 2
Проект увеличенного одноэтажного мансардного дома из кирпича с гаражом и большим фронтонным окном / 1
Проект увеличенного одноэтажного мансардного дома из кирпича с гаражом и большим фронтонным окном / 2
D3110
175 м²
Подготовка проекта:
35 рабочих дней
Стоимость проекта
Купить проект
Задайте вопросы по проекту нашему архитектору
8 (800) 200-28-83
Время работы: пн-вс: с 9:00 до 20:00
Задать вопрос по проекту

Технические характеристики
Общие
Материал стен
Кирпич
Общая площадь
175 м²
Площадь застройки
111.9 м²
Приведенная площадь
165 м²
Количество жилых комнат/спален
4
Этажи
1 этаж + мансарда
Гараж
Встроенный гараж
Количество машин
1
Подвал / цокольный этаж
Без подвала
Длина дома
8.34 м
Ширина дома
14.04 м
Высота в коньке
7.58 м
Кровля
Металлочерепица
Облицовка внешних стен
Мокрая штукатурка
,
Облицовка камнем
Толщина несущих наружных стен
380 мм
Межэтажные перекрытия
Монолитные
Внутренние не несущие перегородки
Кирпичные
Фундамент
Ленточный заглубленный из ФБС
Терраса
Терраса открытая
,
Терраса крытая
Дополнительные
Окна
Окна до пола
,
Панорамные окна
,
Окна с французским балконом
Мансардные окна
Есть
Камин
Есть
Сауна/баня внутри
Нет
Площадь гостиной
31.2 м²
Площадь кухни
7 м²
Количество санузлов
2
Окно в ванной комнате
Есть
Котельная
Есть
Кабинет
Есть
Хозяйская гардеробная
Есть
Кладовая
2
Длина участка
16.34 м
Ширина участка
21.04 м
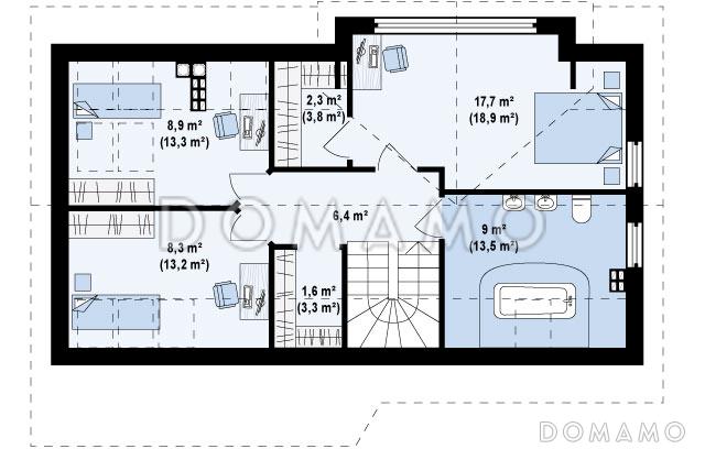
Планы помещений
Фасады
Описание проекта

Проект миниатюрного кирпичного коттеджа, который прослужит долгие годы. Деревянная вагонка серого цвета, использованная в облицовке – главное украшение экстерьера. Проектом также предусмотрено наличие гаража с парковочным местом для одного автомобиля. 

На первом этаже дома расположена кухня, объединенная с просторной гостиной-столовой, откуда есть выход на террасу, а также кабинет, который при желании можно переоборудовать под одну из спален. Второй этаж отведен под три спальни и ванную. 

Преимущества и особенности:

  • Кабинет на первом этаже можно переоборудовать под спальню, что оценят старшие члены семьи.

  • В гараже хозяева дома смогут разместить свой автомобиль.

  • Просторная терраса станет отличным местом для отдыха всей семьи.


В данный момент проект недоступен к заказу. Ниже представлены проекты, похожие на выбранный вами. Ознакомьтесь с нашим предложением или свяжитесь с нами любым удобным способом.

Категории проекта: с мансардой с гаражом с мансардой и гаражом для постоянного проживания кирпич в классическом стиле от 100 до 200 кв.м кирпичные дома хай-тек классические кирпичные дома кирпичные дома с мансардой дома из кирпича с гаражом с террасой из кирпича с террасой готовые загородные из кирпича одноэтажные из кирпича одноэтажные из кирпича с гаражом одноэтажные из кирпича с мансардой одноэтажные кирпичные с котельной одноэтажные с гаражом одноэтажные с мансардой кирпичные с котельной одноэтажные с котельной с котельной кирпичные до 200 кв.м одноэтажные с гаражом и мансардой до 200 кв.м с двухскатной крышей загородные с камином с гардеробной прямоугольные со встроенным гаражом с панорамным остеклением Проекты одноэтажных домов с террасой Типовые проекты загородных одноэтажных домов с террасой и камином с кабинетом с гаражом под одной крышей одноэтажные с 4 спальнями одноэтажные с гаражом и террасой с мансардой и террасой полутораэтажные каменные с гаражом и террасой с 4 спальнями с панорамными окнами и террасой одноэтажные до 200 кв м полутораэтажные из кирпича одноэтажные с мансардными окнами с мансардой с котельной с мансардой с камином с мансардой с двухскатной крышей с мансардой в классическом стиле с мансардой с панорамными окнами с мансардой с окнами до пола с мансардой с мансардными окнами с мансардой прямоугольные с мансардой готовые с мансардой для постоянного проживания с мансардой до 200 кв.м одноэтажные из кирпича с 4 спальнями готовые для постоянного проживания с камином без подвала классический стиль с панорамными окнами прямоугольные с большой гостиной одноэтажные с мансардой для постоянного проживания одноэтажные с мансардой с панорамными окнами одноэтажные с мансардой классические классические для постоянного проживания классические с гаражом классические с 4 спальнями классические с панорамными окнами классические с окнами в пол классические с террасой классические готовые классические с котельной классические без подвала классические с 2 санузлами классические прямоугольные классические с камином классические с двухскатной крышей классические с кабинетом недорогие с панорамными окнами из клееного бруса без гаража Показать все категории Скрыть категории

Похожие проекты
Состав проекта
Входит в стоимость
Цена, руб. Сроки, дней
Комплект архитектурно-строительных чертежей (АС) Входит в стоимость 33 рабочих дня
Готово к продаже
Цена, руб. Сроки, дней
Паспорт рабочего проекта 8 000 ₽ 5 рабочих дней в корзину
Дополнительная копия проекта формата А3 6 500 ₽ 5 рабочих дней в корзину
Электронная копия проекта (скан распечатанной версии) 4 000 ₽ 3 рабочих дня в корзину
Разрабатывается отдельно
Цена, руб. Сроки, дней
Адаптация фундамента (изменение типа фундамента) по запросу 14 рабочих дней
Дизайн интерьера (стоимость от 2200руб. за квад.метр площади) по запросу 30 рабочих дней
Внесение изменений в проект по запросу 20 рабочих дней
Инженерные разделы: ВК + ОВ + ЭО 13 100 ₽ 33 рабочих дня в корзину
Разработка Генплана участка, в масштабе 1:250 7 500 ₽ 15 рабочих дней в корзину
Фэншуй дома 20 000 ₽ 14 рабочих дней в корзину
Фэншуй участка 15 000 ₽ 14 рабочих дней в корзину
Фэншуй полная консультация дом+участок с выездом на объект 100 000 ₽ 30 рабочих дней в корзину
Опции проекта вы можете заказать в корзине при оформлении заказа
Отзывы покупателей
Рейтинг покупателей
0 / 5 5 5 1
На основе 1 оценок покупателей
0%
0%
0%
0%
0%
Отзывы о проекте D3110
Отзыв о проекте D3110
Чтобы оставить отзыв, пожалуйста авторизуйтесь.
Подбор строительной компании
Не знаете кому доверить строительство дома? Мы можем помочь! Подберем для вас из сотен наших партнеров несколько компаний с лучшем соотношением цена/качество под конкретно ваш запрос.
Подобрать