Главная Проекты домов Проект классического мансардного дома из газобетона со встроенным гаражом

D3091 Проект классического мансардного дома из газобетона со встроенным гаражом

Сравнить проект В избранное
Технические характеристики
Общие
Материал стен
Газобетон
Общая площадь
197 м²
Площадь застройки
117.4 м²
Приведенная площадь
185.5 м²
Количество жилых комнат/спален
3
Этажи
1 этаж + мансарда
Гараж
Встроенный гараж
Количество машин
1
Подвал / цокольный этаж
Без подвала
Длина дома
10.08 м
Ширина дома
12.48 м
Высота в коньке
7.83 м
Кровля
Металлочерепица
Облицовка внешних стен
Деревянная вагонка
,
Мокрая штукатурка
Толщина несущих наружных стен
380 мм
Межэтажные перекрытия
Монолитные
Внутренние не несущие перегородки
Газобетонные
Фундамент
Ленточный заглубленный из ФБС
Терраса
Терраса крытая
Дополнительные
Окна
Окна до пола
Мансардные окна
Есть
Камин
Есть
Сауна/баня внутри
Нет
Площадь гостиной
31.1 м²
Площадь кухни
9.9 м²
Количество санузлов
3
Окно в ванной комнате
Есть
Котельная
Есть
Хозяйский санузел
Есть
Хозяйская гардеробная
Есть
Кладовая
2
Длина участка
18.08 м
Ширина участка
20.48 м
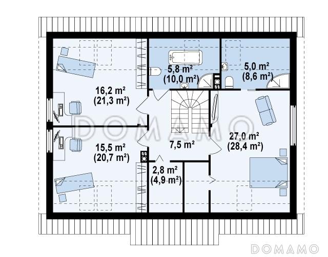
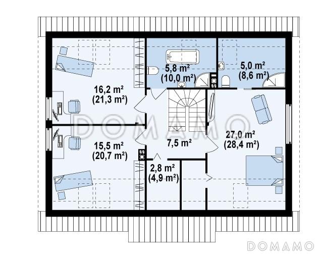
Планы помещений
Фасады
Описание проекта
Компания Domamo предлагает проект классического мансардного дома из газобетона со встроенным гаражом D3091. Общая площадь - 197 м2, размер - 10.08х12.48 м. Фундамент - ленточный заглубленный из фбс, кровля - металлочерепица, внешняя отделка - деревянная вагонка мокрая штукатурка. Для заказа проекта или внесения изменений свяжитесь с нами с помощью форм обратной связи на сайте или по телефону +7 (831) 231-05-02.
Категории проекта: с мансардой с гаражом с мансардой и гаражом для постоянного проживания пенобетон в классическом стиле от 100 до 200 кв.м с террасой из пеноблоков с мансардой из газобетона с мансардой и гаражом из газобетона готовые из газобетона с мансардой из газобетона с гаражом одноэтажные с гаражом одноэтажные с мансардой одноэтажные с котельной с котельной одноэтажные из газобетона из газосиликатных блоков из пеноблоков с гаражом одноэтажные с гаражом и мансардой до 200 кв.м с двухскатной крышей 9х12 загородные из керамзитобетонных блоков с камином с гардеробной прямоугольные со встроенным гаражом 10х12 из газобетона с террасой из блоков одноэтажные из блоков из блоков с гаражом из блоков с мансардой из пеноблоков с террасой загородные из газобетона Проекты одноэтажных домов с террасой Типовые проекты загородных одноэтажных домов с террасой и камином одноэтажные с тремя спальнями Проекты домов с тремя спальнями с гаражом под одной крышей одноэтажных из керамзитобетонных блоков одноэтажные с гаражом и террасой с мансардой и террасой полутораэтажные с гаражом и террасой 9 на 12 с мансардой одноэтажные до 200 кв м 10x12 с мансардой из пеноблоков загородные одноэтажные с мансардными окнами одноэтажные 10х12 с мансардой с котельной с мансардой с камином с мансардой с двухскатной крышей с мансардой в классическом стиле с мансардой с окнами до пола с мансардой с мансардными окнами с мансардой прямоугольные с мансардой готовые с мансардой для постоянного проживания с мансардой до 200 кв.м одноэтажные из газобетона с гаражом одноэтажные из газобетона с террасой одноэтажные из газобетона с мансардой одноэтажные из газобетона с 3 спальнями из газобетона до 200 кв.м из газобетона от 100 до 200 кв.м из газобетона с двухскатной крышей из газобетона в классическом стиле из газобетона с котельной из газобетона прямоугольные из газобетона готовые из газобетона с камином из газобетона с тремя спальнями из газобетона с изолированной кухней из газобетона для постоянного проживания двухэтажные из газобетона с гаражом двухэтажные из газобетона с террасой двухэтажные из газобетона с камином двухэтажные из газобетона с котельной двухэтажные из газобетона классические двухэтажные из газобетона с двухскатной крышей двухэтажные из газобетона до 200 кв. м двухэтажные из газобетона без подвала двухэтажные из газобетона с изолированной кухней двухэтажные из газобетона с 3 спальнями из газобетона с мансардой в классическом стиле из газобетона с мансардой с террасой из газобетона с мансардой с камином из газобетона с мансардой для постоянного проживания из газобетона с мансардой готовые из газобетона с мансардой с двухскатной крышей из газобетона с мансардой с 3 спальнями из газобетона с мансардой с изолированной кухней из газобетона с мансардой с гардеробной из газобетона с мансардой прямоугольные одноэтажные с мансардой для постоянного проживания одноэтажные с мансардой с изолированной кухней одноэтажные с мансардой классические классические для постоянного проживания классические с гаражом классические с 3 спальнями классические с окнами в пол классические с террасой классические готовые классические с котельной классические с изолированной кухней классические без подвала классические прямоугольные классические с камином классические с двухскатной крышей из пеноблоков в классическом стиле из пеноблоков с двухскатной крышей из пеноблоков с окнами до пола из пеноблоков прямоугольные из пеноблоков для постоянного проживания из пеноблоков готовые из пеноблоков с камином из пеноблоков от 100 до 200 м2 из пеноблоков с 3 спальнями из пеноблоков с изолированной кухней недорогие с мансардой недорогие с гаражом недорогие с террасой недорогие для постоянного проживания недорогие с двухскатной крышей недорогие с окнами до пола недорогие с изолированной кухней недорогие без бани недорогие с котельной недорогие с мансардными окнами недорогие с камином недорогие прямоугольные недорогие от 100 до 200 м2 из клееного бруса без гаража Показать все категории Скрыть категории

Похожие проекты
Состав проекта
Входит в стоимость
Цена, руб. Сроки, дней
Комплект архитектурно-строительных чертежей (АС) Входит в стоимость 26 рабочих дней
Разрабатывается отдельно
Цена, руб. Сроки, дней
Адаптация фундамента (изменение типа фундамента) по запросу 14 рабочих дней
Дизайн интерьера (стоимость от 2200руб. за квад.метр площади) по запросу 30 рабочих дней
Внесение изменений в проект по запросу 20 рабочих дней
Фэншуй дома 20 000 ₽ 14 рабочих дней в корзину
Фэншуй участка 15 000 ₽ 14 рабочих дней в корзину
Фэншуй полная консультация дом+участок с выездом на объект 100 000 ₽ 30 рабочих дней в корзину
Опции проекта вы можете заказать в корзине при оформлении заказа
Предложения строителей Выбрать регион
Минимальная
6 307 000 ₽
Стандарт
7 791 000 ₽
Под чистовую отделку
10 202 500 ₽
Показать подробные комплектации
Минимальная
15 767 500 ₽
Стандарт
18 550 000 ₽
Под чистовую отделку
24 115 000 ₽
Показать подробные комплектации
Минимальная
8 395 730 ₽
Стандарт
12 458 180 ₽
Под чистовую отделку
19 770 590 ₽
Показать подробные комплектации
Минимальная
6 492 500 ₽
Стандарт
7 791 000 ₽
Под чистовую отделку
8 718 500 ₽
Показать подробные комплектации
Минимальная
5 987 198 ₽
Стандарт
8 787 135 ₽
Под чистовую отделку
9 401 140 ₽
Показать подробные комплектации
Минимальная
5 453 700 ₽
Стандарт
6 232 800 ₽
Под чистовую отделку
8 180 550 ₽
Показать подробные комплектации
Подбор строительной компании
Не знаете кому доверить строительство дома? Мы можем помочь! Подберем для вас из сотен наших партнеров несколько компаний с лучшем соотношением цена/качество под конкретно ваш запрос.
Подобрать
Посмотреть еще 32 компании Свернуть
Отзывы покупателей
Рейтинг покупателей
0 / 5 5 5 1
На основе 1 оценок покупателей
0%
0%
0%
0%
0%
Отзывы о проекте D3091
Отзыв о проекте D3091
Чтобы оставить отзыв, пожалуйста авторизуйтесь.
Подбор строительной компании
Не знаете кому доверить строительство дома? Мы можем помочь! Подберем для вас из сотен наших партнеров несколько компаний с лучшем соотношением цена/качество под конкретно ваш запрос.
Подобрать