Главная Проекты домов Проект одноэтажного дома из газобетона с тремя спальнями и террасой

D3012 Проект одноэтажного дома из газобетона с тремя спальнями и террасой

Сравнить проект В избранное
Проект одноэтажного дома из газобетона с тремя спальнями и террасой / 1
Проект одноэтажного дома из газобетона с тремя спальнями и террасой / 2
Проект одноэтажного дома из газобетона с тремя спальнями и террасой / 1
Проект одноэтажного дома из газобетона с тремя спальнями и террасой / 2
D3012
92 м²
Подготовка проекта:
30 рабочих дней
Стоимость проекта
Купить проект
Задайте вопросы по проекту нашему архитектору
8 (800) 200-28-83
Время работы: пн-вс: с 9:00 до 20:00
Задать вопрос по проекту

Технические характеристики
Общие
Материал стен
Газобетон
Общая площадь
92 м²
Площадь застройки
110.8 м²
Приведенная площадь
101.3 м²
Количество жилых комнат/спален
3
Этажи
1 этаж
Гараж
Нет гаража
Подвал / цокольный этаж
Без подвала
Длина дома
8.88 м
Ширина дома
12.48 м
Высота в коньке
6.41 м
Кровля
Металлочерепица
Облицовка внешних стен
Деревянная вагонка
,
Мокрая штукатурка
Толщина несущих наружных стен
380 мм
Межэтажные перекрытия
Монолитные
Внутренние не несущие перегородки
Газобетонные
Фундамент
Ленточный заглубленный из ФБС
Терраса
Терраса открытая
,
Терраса крытая
Дополнительные
Окна
Окна до пола
Камин
Есть
Сауна/баня внутри
Нет
Площадь гостиной
26.4 м²
Площадь кухни
7 м²
Количество санузлов
1
Окно в ванной комнате
Есть
Котельная
Есть
Кладовая
1
Длина участка
16.88 м
Ширина участка
18.48 м
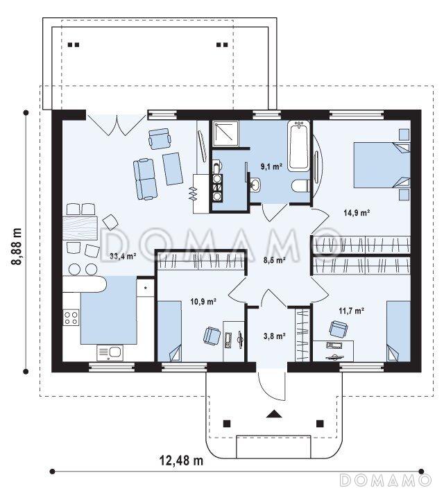
Планы помещений
Фасады
Описание проекта
Компания Domamo предлагает проект одноэтажного дома из газобетона с тремя спальнями и террасой D3012. Общая площадь - 92 м2, размер - 8.88х12.48 м. Фундамент - ленточный заглубленный из фбс, кровля - металлочерепица, внешняя отделка - деревянная вагонка мокрая штукатурка. Для заказа проекта или внесения изменений свяжитесь с нами с помощью форм обратной связи на сайте или по телефону +7 (831) 231-05-02.
Категории проекта: для постоянного проживания пенобетон в классическом стиле до 100 кв.м с террасой из газобетона одноэтажные из пеноблоков готовые одноэтажные одноэтажные до 150 кв. м. одноэтажные с котельной с котельной одноэтажные из газобетона из газосиликатных блоков одноэтажные до 100 кв.м до 120 кв.м до 150 кв.м до 200 кв.м с двухскатной крышей 9х12 загородные из керамзитобетонных блоков с камином прямоугольные из газобетона с террасой из блоков одноэтажные из блоков из пеноблоков с террасой загородные из газобетона Проекты одноэтажных домов с террасой Типовые проекты загородных одноэтажных домов без гаража одноэтажные без гаража с террасой и камином одноэтажные с тремя спальнями Проекты домов с тремя спальнями маленькие одноэтажных из керамзитобетонных блоков одноэтажные 9 на 12 маленькие одноэтажные одноэтажные до 120 кв.м одноэтажные из пеноблоков до 100 кв м одноэтажные из газобетона до 100м2 одноэтажные до 200 кв м до 140 кв м до 130 кв м из пеноблоков загородные одноэтажные в классическом стиле одноэтажные с двухскатной крышей одноэтажные прямоугольные одноэтажные с окнами в пол одноэтажные с камином одноэтажные до 180 м2 маленькие одноэтажные для постоянного проживания маленькие одноэтажные с террасой маленькие одноэтажные из газобетона маленькие одноэтажные классические одноэтажные из газобетона с террасой одноэтажные из газобетона до 120 кв. м одноэтажные из газобетона до 150 кв. м одноэтажные из газобетона с мансардой одноэтажные из газобетона с 3 спальнями классические окна в пол двухскатная крыша прямоугольные с камином готовые проекты для постоянного проживания с котельной из газобетона до 100 кв.м из газобетона до 120 кв.м из газобетона до 150 кв.м из газобетона до 200 кв.м из газобетона с двухскатной крышей из газобетона в классическом стиле из газобетона с котельной из газобетона прямоугольные из газобетона готовые из газобетона с камином из газобетона с тремя спальнями из газобетона маленькие из газобетона для постоянного проживания классические для постоянного проживания классические без гаража классические с 3 спальнями классические с окнами в пол классические с террасой классические готовые классические с котельной классические без подвала классические прямоугольные классические с камином классические с двухскатной крышей до 100 кв.м для постоянного проживания до 100 кв.м с террасой до 100 кв.м с котельной до 100 кв.м с окнами в пол до 100 кв.м прямоугольные до 100 кв.м с камином до 100 кв.м в классическом стиле до 100 кв.м с двухскатной крышей до 100 кв.м с тремя спальнями до 120 кв.м готовые до 120 кв.м для постоянного проживания до 120 кв.м без гаража до 120 кв.м с двухскатной крышей до 120 кв.м с окнами в пол до 120 кв.м с террасой до 120 кв.м классические до 120 кв.м с котельной до 120 кв.м с тремя спальнями до 120 кв.м прямоугольные до 120 кв.м 9х12 до 150 кв.м для постоянного проживания до 150 кв.м без гаража до 150 кв.м с двухскатной крышей до 150 кв.м с окнами до пола до 150 кв.м классические до 150 кв.м готовые до 150 кв.м прямоугольные до 150 кв.м с котельной до 150 кв.м без бани до 150 кв.м с террасой до 150 кв.м без подвала до 150 кв.м с 3 спальнями до 150 кв.м с камином маленькие в классическом стиле маленькие с террасой маленькие для постоянного проживания маленькие готовые маленькие прямоугольные маленькие с окнами до пола маленькие с двухскатной крышей маленькие с камином маленькие без бани маленькие с 3 спальнями из пеноблоков в классическом стиле из пеноблоков с двухскатной крышей из пеноблоков с окнами до пола из пеноблоков прямоугольные из пеноблоков для постоянного проживания из пеноблоков готовые из пеноблоков с камином из пеноблоков до 120 м кв. из пеноблоков до 150 м кв. из пеноблоков маленькие из пеноблоков с 3 спальнями из клееного бруса без гаража Показать все категории Скрыть категории

Похожие проекты
Состав проекта
Входит в стоимость
Цена, руб. Сроки, дней
Комплект архитектурно-строительных чертежей (АС) Входит в стоимость 30 рабочих дней
Готово к продаже
Цена, руб. Сроки, дней
Паспорт рабочего проекта 8 000 ₽ 5 рабочих дней в корзину
Инженерные разделы: ВК + ОВ + ЭО 26 000 ₽ 30 рабочих дней в корзину
Дополнительная копия проекта формата А3 6 500 ₽ 5 рабочих дней в корзину
Электронная копия проекта (скан распечатанной версии) 4 000 ₽ 3 рабочих дня в корзину
Разрабатывается отдельно
Цена, руб. Сроки, дней
Адаптация фундамента (изменение типа фундамента) по запросу 14 рабочих дней
Дизайн интерьера (стоимость от 2200руб. за квад.метр площади) по запросу 30 рабочих дней
Внесение изменений в проект по запросу 20 рабочих дней
Разработка Генплана участка, в масштабе 1:250 7 500 ₽ 15 рабочих дней в корзину
Фэншуй дома 20 000 ₽ 14 рабочих дней в корзину
Фэншуй участка 15 000 ₽ 14 рабочих дней в корзину
Фэншуй полная консультация дом+участок с выездом на объект 100 000 ₽ 30 рабочих дней в корзину
Опции проекта вы можете заказать в корзине при оформлении заказа
Предложения строителей Республика Башкортостан
Отзывы покупателей
Рейтинг покупателей
0 / 5 5 5 1
На основе 1 оценок покупателей
0%
0%
0%
0%
0%
Отзывы о проекте D3012
Отзыв о проекте D3012
Чтобы оставить отзыв, пожалуйста авторизуйтесь.
Подбор строительной компании
Не знаете кому доверить строительство дома? Мы можем помочь! Подберем для вас из сотен наших партнеров несколько компаний с лучшем соотношением цена/качество под конкретно ваш запрос.
Подобрать