Главная Проекты домов Проект одноэтажного дома с мансардой, с зоной СПА на цокольном этаже

D2955 Проект одноэтажного дома с мансардой, с зоной СПА на цокольном этаже

Сравнить проект В избранное
Проект одноэтажного дома с мансардой, с зоной СПА на цокольном этаже / 1
Проект одноэтажного дома с мансардой, с зоной СПА на цокольном этаже / 1
D2955
375 м²
Подготовка проекта:
Готов к отправке
Стоимость проекта
Купить проект
Задайте вопросы по проекту нашему архитектору
8 (800) 200-28-83
Время работы: пн-вс: с 9:00 до 20:00
Задать вопрос по проекту

Технические характеристики
Общие
Материал стен
Кирпич
Общая площадь
375 м²
Приведенная площадь
357.35 м²
Количество жилых комнат/спален
6
Этажи
1 этаж + мансарда
Гараж
Нет гаража
Подвал / цокольный этаж
С окнами
Длина дома
13.853 м
Ширина дома
13.802 м
Кровля
Металлочерепица
Облицовка внешних стен
Мокрая штукатурка
Фундамент
Ленточный монолитный
Терраса
Без террасы
Дополнительные
Окна
Панорамные окна
Второй свет
Есть
Сауна/баня внутри
Есть
Площадь гостиной
23.52 м²
Площадь кухни
9.61 м²
Количество санузлов
7
Окно в ванной комнате
Есть
Котельная
Есть
Кабинет
Есть
Спортзал / детский / игровой зал
Есть
Хозяйский санузел
Есть
Хозяйская гардеробная
Есть
Кладовая
5
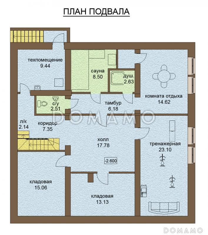
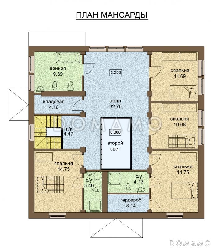
Планы помещений
Фасады
Описание проекта
Компания Domamo предлагает проект одноэтажного дома с мансардой, с зоной спа на цокольном этаже D2955. Общая площадь - 375 м2, размер - 13.853х13.802 м. Фундамент - ленточный монолитный, кровля - металлочерепица, внешняя отделка - мокрая штукатурка. Для заказа проекта или внесения изменений свяжитесь с нами с помощью форм обратной связи на сайте или по телефону +7 (831) 231-05-02.
Категории проекта: с мансардой для постоянного проживания кирпич современные от 300 до 400 кв.м кирпичные дома с мансардой в европейском стиле готовые с цокольным этажом загородные из кирпича одноэтажные из кирпича одноэтажные из кирпича с мансардой одноэтажные кирпичные с цоколем одноэтажные кирпичные с котельной одноэтажные с мансардой кирпичные с цокольным этажом кирпичные с котельной одноэтажные с цокольным этажом одноэтажные с котельной с котельной со вторым светом с баней с цокольным этажом и мансардой загородные с сауной с гардеробной квадратные с панорамным остеклением кирпичные с баней современные кирпичные Типовые проекты загородных одноэтажных домов Проекты одноэтажных домов с баней на две семьи без гаража одноэтажные без гаража с кабинетом полутораэтажные полутораэтажные из кирпича недорогие с мансардой с баней с мансардой с котельной с мансардой современные с мансардой с панорамными окнами с мансардой со вторым светом с мансардой квадратные с мансардой готовые с мансардой для постоянного проживания с мансардой элитные готовые для постоянного проживания без гаража без террасы с баней современные с панорамными окнами со вторым светом квадратные одноэтажные с мансардой для постоянного проживания одноэтажные с мансардой со вторым светом одноэтажные с мансардой с панорамными окнами одноэтажные с мансардой современные современные без гаража современные с панорамными окнами современные без террасы современные большие современные со вторым светом современные с подвалом недорогие с мансардой недорогие кирпичные недорогие без гаража недорогие без террасы недорогие для постоянного проживания недорогие с панорамными окнами недорогие с баней недорогие с кабинетом недорогие с котельной недорогие с вторым светом недорогие квадратные недорогие от 300 до 400 м2 из клееного бруса без гаража Показать все категории Скрыть категории

Похожие проекты
Состав проекта
Входит в стоимость
Цена, руб. Сроки, дней
Комплект архитектурно-строительных чертежей (АС) Входит в стоимость Готов к отправке
Готово к продаже
Цена, руб. Сроки, дней
Паспорт рабочего проекта 5 000 ₽ Готов к отправке в корзину
Разрабатывается отдельно
Цена, руб. Сроки, дней
Адаптация фундамента (изменение типа фундамента) по запросу 14 рабочих дней
Дизайн интерьера (стоимость от 2200руб. за квад.метр площади) по запросу 30 рабочих дней
Внесение изменений в проект по запросу 20 рабочих дней
Фэншуй дома 20 000 ₽ 14 рабочих дней в корзину
Фэншуй участка 15 000 ₽ 14 рабочих дней в корзину
Фэншуй полная консультация дом+участок с выездом на объект 100 000 ₽ 30 рабочих дней в корзину
Опции проекта вы можете заказать в корзине при оформлении заказа
Отзывы покупателей
Рейтинг покупателей
0 / 5 5 5 1
На основе 1 оценок покупателей
0%
0%
0%
0%
0%
Отзывы о проекте D2955
Отзыв о проекте D2955
Чтобы оставить отзыв, пожалуйста авторизуйтесь.
Подбор строительной компании
Не знаете кому доверить строительство дома? Мы можем помочь! Подберем для вас из сотен наших партнеров несколько компаний с лучшем соотношением цена/качество под конкретно ваш запрос.
Подобрать