Главная Проекты домов Проект компактного одноэтажного мансардного дома из кирпича с кабинетом, тремя спальнями и открытой террасой над гаражом

D2850 Проект компактного одноэтажного мансардного дома из кирпича с кабинетом, тремя спальнями и открытой террасой над гаражом

Сравнить проект В избранное
Проект компактного одноэтажного мансардного дома из кирпича с кабинетом, тремя спальнями и открытой террасой над гаражом / 1
Проект компактного одноэтажного мансардного дома из кирпича с кабинетом, тремя спальнями и открытой террасой над гаражом / 2
Проект компактного одноэтажного мансардного дома из кирпича с кабинетом, тремя спальнями и открытой террасой над гаражом / 3
Проект компактного одноэтажного мансардного дома из кирпича с кабинетом, тремя спальнями и открытой террасой над гаражом / 1
Проект компактного одноэтажного мансардного дома из кирпича с кабинетом, тремя спальнями и открытой террасой над гаражом / 2
Проект компактного одноэтажного мансардного дома из кирпича с кабинетом, тремя спальнями и открытой террасой над гаражом / 3
D2850
139 м²
Подготовка проекта:
45 рабочих дней
Стоимость проекта
Купить проект
Задайте вопросы по проекту нашему архитектору
8 (800) 200-28-83
Время работы: пн-вс: с 9:00 до 20:00
Задать вопрос по проекту

Технические характеристики
Общие
Материал стен
Кирпич
Общая площадь
139 м²
Площадь застройки
108.3 м²
Приведенная площадь
139.08 м²
Количество жилых комнат/спален
4
Этажи
1 этаж + мансарда
Гараж
Пристроенный гараж
Подвал / цокольный этаж
Без подвала
Длина дома
8.84 м
Ширина дома
13.78 м
Высота в коньке
7.25 м
Кровля
Металлочерепица
Облицовка внешних стен
Деревянная вагонка
,
Мокрая штукатурка
,
Облицовочный кирпич
Толщина несущих наружных стен
380 мм
Межэтажные перекрытия
Монолитные
Внутренние не несущие перегородки
Кирпичные
Фундамент
Ленточный заглубленный из ФБС
Терраса
Терраса открытая
,
Терраса крытая
Дополнительные
Окна
Окна до пола
,
Окна с французским балконом
Мансардные окна
Есть
Камин
Есть
Сауна/баня внутри
Нет
Площадь гостиной
22.4 м²
Площадь кухни
7 м²
Количество санузлов
2
Окно в ванной комнате
Есть
Котельная
Есть
Кабинет
Есть
Кладовая
1
Длина участка
16.84 м
Ширина участка
20.78 м
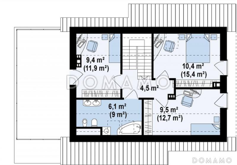
Планы помещений
Описание проекта
Компания Domamo предлагает проект компактного одноэтажного мансардного дома из кирпича с кабинетом, тремя спальнями и открытой террасой над гаражом D2850. Общая площадь - 139 м2, размер - 8.84х13.78 м. Фундамент - ленточный заглубленный из фбс, кровля - металлочерепица, внешняя отделка - облицовочный кирпич деревянная вагонка мокрая штукатурка. Для заказа проекта или внесения изменений свяжитесь с нами с помощью форм обратной связи на сайте или по телефону +7 (831) 231-05-02.
Категории проекта: с мансардой с гаражом с мансардой и гаражом для постоянного проживания кирпич от 100 до 200 кв.м кирпичные дома с мансардой дома из кирпича с гаражом кирпичные европейские дома с террасой из кирпича с террасой готовые в стиле минимализм загородные из кирпича одноэтажные из кирпича одноэтажные из кирпича с гаражом одноэтажные из кирпича с мансардой одноэтажные кирпичные с котельной одноэтажные с гаражом одноэтажные с мансардой кирпичные площадью до 150 кв. м. кирпичные с котельной одноэтажные до 150 кв. м. одноэтажные с котельной с котельной кирпичные до 200 кв.м одноэтажные с гаражом и мансардой до 150 кв.м до 200 кв.м с двухскатной крышей загородные с камином прямоугольные Проекты одноэтажных домов с террасой Типовые проекты загородных одноэтажных домов с террасой и камином облицованные кирпичом с кабинетом с гаражом под одной крышей одноэтажные с 4 спальнями одноэтажные с гаражом и террасой с мансардой до 150 кв м с мансардой и террасой полутораэтажные с гаражом и террасой с 4 спальнями одноэтажные до 200 кв м до 140 кв м полутораэтажные из кирпича одноэтажные с мансардными окнами с мансардой с котельной с мансардой с камином с мансардой с двухскатной крышей с мансардой в стиле минимализм с мансардой с окнами до пола с мансардой с мансардными окнами с мансардой прямоугольные с мансардой готовые с мансардой для постоянного проживания с мансардой до 200 кв.м с мансардой от 100 до 150 кв.м одноэтажные из кирпича с 4 спальнями готовые для постоянного проживания с камином без подвала в стиле минимализм прямоугольные одноэтажные с мансардой для постоянного проживания одноэтажные с мансардой в стиле минимализм до 150 кв.м для постоянного проживания до 150 кв.м с гаражом до 150 кв.м с двухскатной крышей до 150 кв.м с окнами до пола до 150 кв.м минимализм до 150 кв.м готовые до 150 кв.м с мансардными окнами до 150 кв.м прямоугольные до 150 кв.м с котельной до 150 кв.м с кабинетом до 150 кв.м без бани до 150 кв.м с террасой до 150 кв.м без подвала до 150 кв.м с 4 спальнями до 150 кв.м с камином в стиле минимализм для постоянного проживания в стиле минимализм с гаражом в стиле минимализм прямоугольные в стиле минимализм с двухскатной крышей в стиле минимализм с окнами в пол в стиле минимализм с мансардными окнами в стиле минимализм с террасой в стиле минимализм с 4 спальнями в стиле минимализм с кабинетом в стиле минимализм с котельной в стиле минимализм с камином в стиле минимализм недорогие в стиле минимализм от 100 до 200 м2 в стиле минимализм с ленточным фундаментом недорогие с мансардой недорогие кирпичные недорогие с гаражом недорогие с террасой из клееного бруса без гаража Показать все категории Скрыть категории

Похожие проекты
Состав проекта
Входит в стоимость
Цена, руб. Сроки, дней
Комплект архитектурно-строительных чертежей (АС) Входит в стоимость 45 рабочих дней
Готово к продаже
Цена, руб. Сроки, дней
Паспорт рабочего проекта 8 000 ₽ 45 рабочих дней в корзину
Дополнительная копия проекта формата А3 6 500 ₽ 45 рабочих дней в корзину
Электронная копия проекта (скан распечатанной версии) 4 000 ₽ 3 рабочих дня в корзину
Разрабатывается отдельно
Цена, руб. Сроки, дней
Адаптация фундамента (изменение типа фундамента) по запросу 14 рабочих дней
Дизайн интерьера (стоимость от 2200руб. за квад.метр площади) по запросу 30 рабочих дней
Внесение изменений в проект по запросу 20 рабочих дней
Инженерные разделы: ВК + ОВ + ЭО 21 690 ₽ 45 рабочих дней в корзину
Разработка Генплана участка, в масштабе 1:250 7 500 ₽ 45 рабочих дней в корзину
Фэншуй дома 20 000 ₽ 14 рабочих дней в корзину
Фэншуй участка 15 000 ₽ 14 рабочих дней в корзину
Фэншуй полная консультация дом+участок с выездом на объект 100 000 ₽ 30 рабочих дней в корзину
Опции проекта вы можете заказать в корзине при оформлении заказа
Варианты проекта Сравнить все варианты
Избранные проекты
Избранные строители
Отзывы покупателей
Рейтинг покупателей
0 / 5 5 5 1
На основе 1 оценок покупателей
0%
0%
0%
0%
0%
Отзывы о проекте D2850
Отзыв о проекте D2850
Чтобы оставить отзыв, пожалуйста авторизуйтесь.
Подбор строительной компании
Не знаете кому доверить строительство дома? Мы можем помочь! Подберем для вас из сотен наших партнеров несколько компаний с лучшем соотношением цена/качество под конкретно ваш запрос.
Подобрать