Главная Проекты домов Проект комфортного одноэтажного дома из кирпича с тремя спальнями, кабинетом и гаражом

D2809 Проект комфортного одноэтажного дома из кирпича с тремя спальнями, кабинетом и гаражом

Сравнить проект В избранное
Технические характеристики
Общие
Материал стен
Кирпич
Общая площадь
205 м²
Площадь застройки
320.7 м²
Приведенная площадь
198.6 м²
Количество жилых комнат/спален
4
Этажи
1 этаж
Гараж
Пристроенный гараж
Количество машин
2
Подвал / цокольный этаж
Без подвала
Длина дома
20.41 м
Ширина дома
14.60 м
Высота в коньке
7.24 м
Кровля
Металлочерепица
Облицовка внешних стен
Мокрая штукатурка
,
Облицовочный кирпич
Толщина несущих наружных стен
380 мм
Межэтажные перекрытия
По деревянным балкам
Внутренние не несущие перегородки
Кирпичные
Фундамент
Ленточный заглубленный из ФБС
Терраса
Терраса открытая
,
Терраса крытая
Дополнительные
Окна
Окна до пола
Камин
Есть
Сауна/баня внутри
Нет
Площадь гостиной
37.9 м²
Площадь кухни
11.9 м²
Количество санузлов
2
Окно в ванной комнате
Есть
Котельная
Есть
Кабинет
Есть
Хозяйская гардеробная
Есть
Кладовая
2
Длина участка
28.39 м
Ширина участка
22.44 м
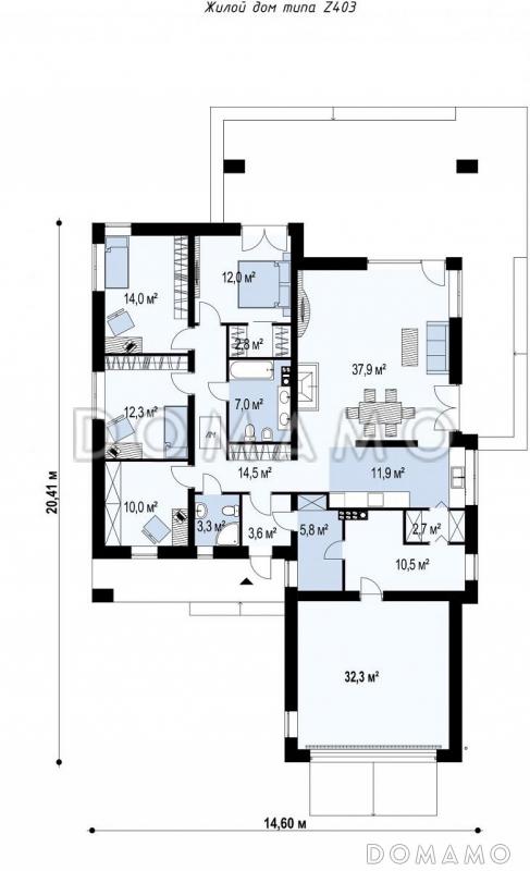
Планы помещений
Описание проекта
Компания Domamo предлагает проект комфортного одноэтажного дома из кирпича с тремя спальнями, кабинетом и гаражом D2809. Общая площадь - 205 м2, размер - 20.41х14.60 м. Фундамент - ленточный заглубленный из фбс, кровля - металлочерепица, внешняя отделка - облицовочный кирпич мокрая штукатурка. Для заказа проекта или внесения изменений свяжитесь с нами с помощью форм обратной связи на сайте или по телефону +7 (831) 231-05-02.
Категории проекта: с гаражом для постоянного проживания кирпич современные от 200 до 300 кв.м дома из кирпича с гаражом в европейском стиле с террасой из кирпича с террасой готовые загородные из кирпича одноэтажные из кирпича одноэтажные из кирпича с гаражом одноэтажные кирпичные с котельной одноэтажные одноэтажные с гаражом кирпичные с котельной одноэтажные с котельной с котельной загородные с четырехскатной крышей с камином с гардеробной угловые современные кирпичные Проекты одноэтажных домов с террасой Типовые проекты загородных одноэтажных домов с террасой и камином облицованные кирпичом с кабинетом с гаражом под одной крышей одноэтажные с 4 спальнями одноэтажные с гаражом и террасой с гаражом на 2 машины с гаражом и террасой с 4 спальнями г-образные от 200 до 250 м одноэтажные современные одноэтажные с четырехскатной крышей одноэтажные с окнами в пол одноэтажные с камином одноэтажные с кабинетом одноэтажные с 2 санузлами одноэтажные из кирпича с террасой одноэтажные из кирпича с 4 спальнями с четырехскатной крышей готовые для постоянного проживания с камином с гаражом на 2 машины без подвала современные угловые с большой гостиной современные с гаражом современные с окнами в пол современные с террасой из клееного бруса без гаража Показать все категории Скрыть категории

Похожие проекты
Состав проекта
Входит в стоимость
Цена, руб. Сроки, дней
Комплект архитектурно-строительных чертежей (АС) Входит в стоимость 33 рабочих дня
Готово к продаже
Цена, руб. Сроки, дней
Паспорт рабочего проекта 8 000 ₽ 5 рабочих дней в корзину
Дополнительная копия проекта формата А3 6 500 ₽ 5 рабочих дней в корзину
Электронная копия проекта (скан распечатанной версии) 4 000 ₽ 3 рабочих дня в корзину
Разрабатывается отдельно
Цена, руб. Сроки, дней
Адаптация фундамента (изменение типа фундамента) по запросу 14 рабочих дней
Дизайн интерьера (стоимость от 2200руб. за квад.метр площади) по запросу 30 рабочих дней
Внесение изменений в проект по запросу 20 рабочих дней
Инженерные разделы: ВК + ОВ + ЭО 23 340 ₽ 33 рабочих дня в корзину
Разработка Генплана участка, в масштабе 1:250 7 500 ₽ 15 рабочих дней в корзину
Фэншуй дома 20 000 ₽ 14 рабочих дней в корзину
Фэншуй участка 15 000 ₽ 14 рабочих дней в корзину
Фэншуй полная консультация дом+участок с выездом на объект 100 000 ₽ 30 рабочих дней в корзину
Опции проекта вы можете заказать в корзине при оформлении заказа
Предложения строителей Выбрать регион
Минимальная
6 951 000 ₽
Стандарт
8 539 800 ₽
Под чистовую отделку
11 121 600 ₽
Показать подробные комплектации
Минимальная
16 881 000 ₽
Стандарт
19 860 000 ₽
Под чистовую отделку
25 818 000 ₽
Показать подробные комплектации
Минимальная
9 278 592 ₽
Стандарт
13 627 932 ₽
Под чистовую отделку
21 456 744 ₽
Показать подробные комплектации
Минимальная
7 957 902 ₽
Стандарт
9 137 586 ₽
Под чистовую отделку
11 699 923 ₽
Показать подробные комплектации
Минимальная
3 895 131 ₽
Стандарт
4 823 507 ₽
Под чистовую отделку
5 805 683 ₽
Показать подробные комплектации
Подбор строительной компании
Не знаете кому доверить строительство дома? Мы можем помочь! Подберем для вас из сотен наших партнеров несколько компаний с лучшем соотношением цена/качество под конкретно ваш запрос.
Подобрать
Посмотреть еще 20 компаний Свернуть
Отзывы покупателей
Рейтинг покупателей
0 / 5 5 5 1
На основе 1 оценок покупателей
0%
0%
0%
0%
0%
Отзывы о проекте D2809
Отзыв о проекте D2809
Чтобы оставить отзыв, пожалуйста авторизуйтесь.
Подбор строительной компании
Не знаете кому доверить строительство дома? Мы можем помочь! Подберем для вас из сотен наших партнеров несколько компаний с лучшем соотношением цена/качество под конкретно ваш запрос.
Подобрать