Главная Проекты домов Проект дома с просторной двусветной гостиной с камином

D28 Проект дома с просторной двусветной гостиной с камином

Сравнить проект В избранное
Технические характеристики
Общие
Материал стен
Газобетон
Общая площадь
318 м²
Жилая площадь
135.5 м²
Приведенная площадь
262.2 м²
Количество жилых комнат/спален
5
Этажи
2 этажа
Гараж
Нет гаража
Подвал / цокольный этаж
Без подвала
Длина дома
16.0 м
Ширина дома
13.9 м
Кровля
Металлочерепица
Облицовка внешних стен
Мокрая штукатурка
,
Облицовочный кирпич
Толщина несущих наружных стен
400 мм
Межэтажные перекрытия
Сборные
Внутренние не несущие перегородки
Газобетонные
Фундамент
Монолитная ж/бетонная плита
Терраса
Без террасы
Дополнительные
Окна
Окна до пола
Второй свет
Есть
Камин
Есть
Сауна/баня внутри
Нет
Площадь гостиной
31.8 м²
Площадь кухни
33.8 м²
Количество санузлов
3
Окно в ванной комнате
Есть
Котельная
Есть
Кабинет
Есть
Постирочная
Есть
Хозяйский санузел
Есть
Хозяйская гардеробная
Есть
Кладовая
1
Балкон / лоджия
Балкон
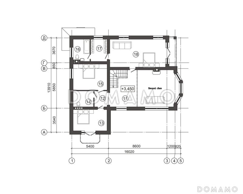
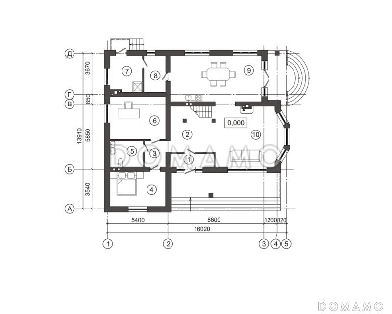
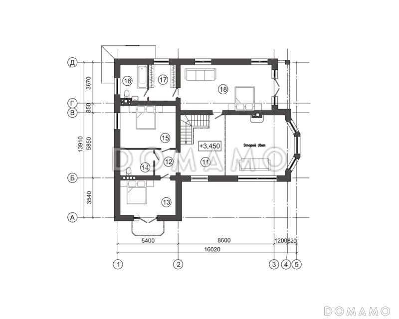
Планы помещений
Описание проекта

Просторный двухэтажный дом примет для всесезонного проживания большую разновозрастную семью. Грандиозность экстерьера, объединяющего 2 полноценных этажа с модным эркером и высокими окнами, дополняется удобной планировкой внутреннего пространства. Здесь имеются:

  • Большая гостиная с устройством второго света и камином для шумных праздников и приемов,
  • Парадная деревянная лестница на второй этаж, полностью освещенная естественным светом,
  • Обширная зона отдыха с разделением спален на 2 этажа и балконами,
  • Перенос большинства технических помещений в цокольный этаж.

Категории проекта: для постоянного проживания пенобетон от 300 до 400 кв.м с эркером из газобетона с эркером из газобетона готовые двухэтажные с котельной со вторым светом двухэтажные из газобетона из газосиликатных блоков двухэтажные из пеноблоков загородные с четырехскатной крышей из керамзитобетонных блоков с камином с гардеробной прямоугольные с балконом в стиле эклектика двухэтажные с эркером из блоков двухэтажные из блоков из блоков с эркером Проекты домов из пеноблоков с эркером загородные из газобетона без гаража облицованные кирпичом с кабинетом из пеноблоков загородные с 5 спальнями двухэтажные с камином двухэтажные со вторым светом двухэтажные с балконом двухэтажные без гаража из газобетона от 300 до 400 кв.м из газобетона с четырехскатной крышей из газобетона с балконом из газобетона с котельной из газобетона прямоугольные из газобетона готовые из газобетона с камином из газобетона с большой кухней из газобетона с кабинетом из газобетона с изолированной кухней из газобетона для постоянного проживания из газобетона со вторым светом двухэтажные из газобетона без гаража двухэтажные из газобетона без террасы двухэтажные из газобетона с камином двухэтажные из газобетона с прачечной двухэтажные из газобетона с кабинетом двухэтажные из газобетона с котельной двухэтажные из газобетона со вторым светом двухэтажные из газобетона с четырехскатной крышей двухэтажные из газобетона большие двухэтажные из газобетона без подвала двухэтажные из газобетона с изолированной кухней двухэтажные из газобетона с эркером из пеноблоков в стиле эклектика из пеноблоков с четырехскатной крышей из пеноблоков с окнами до пола из пеноблоков с вторым светом из пеноблоков прямоугольные из пеноблоков с балконом из пеноблоков для постоянного проживания из пеноблоков готовые из пеноблоков с камином из пеноблоков от 300 до 400 м2 из пеноблоков большие из пеноблоков с большой кухней из пеноблоков с изолированной кухней из клееного бруса без гаража Показать все категории Скрыть категории

Похожие проекты
Состав проекта
Входит в стоимость
Цена, руб. Сроки, дней
Комплект архитектурно-строительных чертежей (АС) Входит в стоимость Готов к отправке
Паспорт рабочего проекта Входит в стоимость Готов к отправке
Разрабатывается отдельно
Цена, руб. Сроки, дней
Адаптация фундамента (изменение типа фундамента) по запросу 14 рабочих дней
Дизайн интерьера (стоимость от 2200руб. за квад.метр площади) по запросу 30 рабочих дней
Внесение изменений в проект по запросу 20 рабочих дней
Фэншуй дома 20 000 ₽ 14 рабочих дней в корзину
Фэншуй участка 15 000 ₽ 14 рабочих дней в корзину
Фэншуй полная консультация дом+участок с выездом на объект 100 000 ₽ 30 рабочих дней в корзину
Опции проекта вы можете заказать в корзине при оформлении заказа
Предложения строителей Выбрать регион
Минимальная
8 914 800 ₽
Стандарт
11 012 400 ₽
Под чистовую отделку
14 421 000 ₽
Показать подробные комплектации
Минимальная
22 064 130 ₽
Стандарт
25 957 800 ₽
Под чистовую отделку
33 745 140 ₽
Показать подробные комплектации
Минимальная
11 216 916 ₽
Стандарт
16 644 455 ₽
Под чистовую отделку
26 414 027 ₽
Показать подробные комплектации
Минимальная
9 177 000 ₽
Стандарт
11 012 400 ₽
Под чистовую отделку
12 323 400 ₽
Показать подробные комплектации
Минимальная
8 462 767 ₽
Стандарт
12 420 414 ₽
Под чистовую отделку
13 288 296 ₽
Показать подробные комплектации
Минимальная
7 341 600 ₽
Стандарт
8 390 400 ₽
Под чистовую отделку
11 012 400 ₽
Показать подробные комплектации
Подбор строительной компании
Не знаете кому доверить строительство дома? Мы можем помочь! Подберем для вас из сотен наших партнеров несколько компаний с лучшем соотношением цена/качество под конкретно ваш запрос.
Подобрать
Посмотреть еще 32 компании Свернуть
Отзывы покупателей
Рейтинг покупателей
0 / 5 5 5 1
На основе 1 оценок покупателей
0%
0%
0%
0%
0%
Отзывы о проекте D28
Отзыв о проекте D28
Чтобы оставить отзыв, пожалуйста авторизуйтесь.
Подбор строительной компании
Не знаете кому доверить строительство дома? Мы можем помочь! Подберем для вас из сотен наших партнеров несколько компаний с лучшем соотношением цена/качество под конкретно ваш запрос.
Подобрать