Главная Проекты домов Проект небольшого двухэтажного дома из кирпича с тремя спальнями и балконом

D2631 Проект небольшого двухэтажного дома из кирпича с тремя спальнями и балконом

Сравнить проект В избранное
Технические характеристики
Общие
Материал стен
Кирпич
Общая площадь
103 м²
Площадь застройки
100.1 м²
Приведенная площадь
103.05 м²
Количество жилых комнат/спален
3
Этажи
2 этажа
Гараж
Нет гаража
Подвал / цокольный этаж
Без подвала
Длина дома
12.58 м
Ширина дома
7.01 м
Высота в коньке
8.42 м
Кровля
Металлочерепица
Облицовка внешних стен
Мокрая штукатурка
Толщина несущих наружных стен
380 мм
Межэтажные перекрытия
Монолитные
Внутренние не несущие перегородки
Кирпичные
Фундамент
Ленточный заглубленный из ФБС
Терраса
Терраса открытая
Дополнительные
Окна
Окна до пола
,
Окна с французским балконом
Камин
Есть
Сауна/баня внутри
Нет
Площадь гостиной
20.4 м²
Площадь кухни
6.1 м²
Количество санузлов
2
Окно в ванной комнате
Есть
Котельная
Есть
Хозяйская гардеробная
Есть
Кладовая
1
Дом для узких участков
Есть
Балкон / лоджия
Балкон
Длина участка
17.20 м
Ширина участка
13.94 м
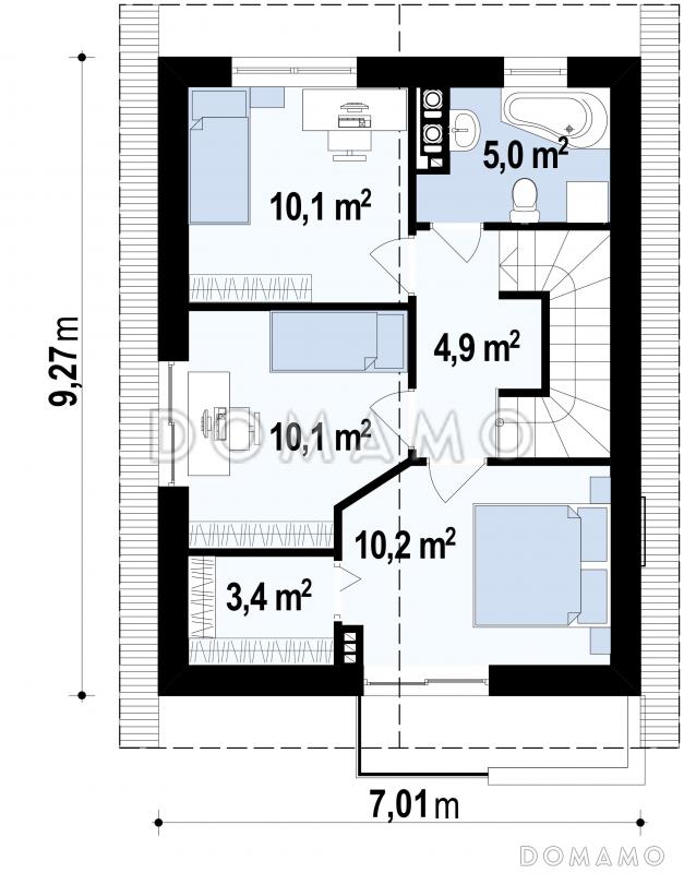
Планы помещений
Фасады
Описание проекта
Компания Domamo предлагает проект небольшого двухэтажного дома из кирпича с тремя спальнями и балконом D2631. Общая площадь - 103 м2, размер - 12.58х7.01 м. Фундамент - ленточный заглубленный из фбс, кровля - металлочерепица, внешняя отделка - мокрая штукатурка. Для заказа проекта или внесения изменений свяжитесь с нами с помощью форм обратной связи на сайте или по телефону +7 (831) 231-05-02.
Категории проекта: для постоянного проживания кирпич в классическом стиле для узких участков от 100 до 200 кв.м кирпичные дома хай-тек классические кирпичные дома с террасой из кирпича с террасой готовые кирпичные для узких участков загородные из кирпича двухэтажные из кирпича двухэтажные кирпичные площадью до 150 кв. м. кирпичные с котельной с котельной кирпичные до 200 кв.м до 120 кв.м до 150 кв.м до 200 кв.м с двухскатной крышей загородные с камином с гардеробной узкие прямоугольные с балконом Проекты двухэтажных домов с террасой Проекты двухэтажных домов с верандой без гаража с террасой и камином Проекты домов с тремя спальнями двухэтажные до 150 кв м двухэтажные 200 кв м до 140 кв м до 130 кв м двухэтажные до 130 кв.м с балконом и террасой узкие двухэтажные двухэтажные до 120 кв.м двухэтажные до 180 кв.м двухэтажные с камином двухэтажные с двускатной крышей двухэтажные с 3 спальнями двухэтажные с балконом двухэтажные с балконом и террасой двухэтажные в классическом стиле двухэтажные до 150 кв.м с террасой двухэтажные до 150 кв.м с 3 спальнями двухэтажные без гаража классические для постоянного проживания классические без гаража классические с 3 спальнями классические с окнами в пол классические с террасой классические готовые классические для узких участков классические с котельной классические без подвала классические с 2 санузлами классические с балконом классические прямоугольные классические с камином классические с двухскатной крышей до 120 кв.м кирпичные до 120 кв.м готовые до 120 кв.м для постоянного проживания до 120 кв.м без гаража до 120 кв.м с двухскатной крышей до 120 кв.м с окнами в пол до 120 кв.м с террасой до 120 кв.м классические до 120 кв.м с котельной до 120 кв.м с тремя спальнями до 120 кв.м прямоугольные до 120 кв.м с балконом до 150 кв.м для постоянного проживания до 150 кв.м без гаража до 150 кв.м с двухскатной крышей до 150 кв.м с окнами до пола до 150 кв.м классические до 150 кв.м для узких участков до 150 кв.м готовые до 150 кв.м с балконом до 150 кв.м прямоугольные до 150 кв.м с котельной до 150 кв.м без бани до 150 кв.м с террасой до 150 кв.м без подвала до 150 кв.м с 3 спальнями до 150 кв.м с камином из клееного бруса без гаража Показать все категории Скрыть категории

Похожие проекты
Состав проекта
Входит в стоимость
Цена, руб. Сроки, дней
Комплект архитектурно-строительных чертежей (АС) Входит в стоимость 33 рабочих дня
Готово к продаже
Цена, руб. Сроки, дней
Паспорт рабочего проекта 8 000 ₽ 5 рабочих дней в корзину
Дополнительная копия проекта формата А3 6 500 ₽ 5 рабочих дней в корзину
Электронная копия проекта (скан распечатанной версии) 4 000 ₽ 3 рабочих дня в корзину
Разрабатывается отдельно
Цена, руб. Сроки, дней
Адаптация фундамента (изменение типа фундамента) по запросу 14 рабочих дней
Дизайн интерьера (стоимость от 2200руб. за квад.метр площади) по запросу 30 рабочих дней
Внесение изменений в проект по запросу 20 рабочих дней
Инженерные разделы: ВК + ОВ + ЭО 21 690 ₽ 33 рабочих дня в корзину
Разработка Генплана участка, в масштабе 1:250 7 500 ₽ 15 рабочих дней в корзину
Фэншуй дома 20 000 ₽ 14 рабочих дней в корзину
Фэншуй участка 15 000 ₽ 14 рабочих дней в корзину
Фэншуй полная консультация дом+участок с выездом на объект 100 000 ₽ 30 рабочих дней в корзину
Опции проекта вы можете заказать в корзине при оформлении заказа
Предложения строителей Выбрать регион
Минимальная
3 606 750 ₽
Стандарт
4 431 150 ₽
Под чистовую отделку
5 770 800 ₽
Показать подробные комплектации
Минимальная
10 511 100 ₽
Стандарт
12 366 000 ₽
Под чистовую отделку
16 075 800 ₽
Показать подробные комплектации
Минимальная
5 605 920 ₽
Стандарт
8 233 695 ₽
Под чистовую отделку
12 963 690 ₽
Показать подробные комплектации
Минимальная
4 542 134 ₽
Стандарт
5 215 463 ₽
Под чистовую отделку
6 677 969 ₽
Показать подробные комплектации
Минимальная
2 598 575 ₽
Стандарт
3 217 926 ₽
Под чистовую отделку
3 873 170 ₽
Показать подробные комплектации
Подбор строительной компании
Не знаете кому доверить строительство дома? Мы можем помочь! Подберем для вас из сотен наших партнеров несколько компаний с лучшем соотношением цена/качество под конкретно ваш запрос.
Подобрать
Посмотреть еще 20 компаний Свернуть
Отзывы покупателей
Рейтинг покупателей
0 / 5 5 5 1
На основе 1 оценок покупателей
0%
0%
0%
0%
0%
Отзывы о проекте D2631
Отзыв о проекте D2631
Чтобы оставить отзыв, пожалуйста авторизуйтесь.
Подбор строительной компании
Не знаете кому доверить строительство дома? Мы можем помочь! Подберем для вас из сотен наших партнеров несколько компаний с лучшем соотношением цена/качество под конкретно ваш запрос.
Подобрать