Главная Проекты домов Проект дома с входом с угла здания, террасами, кладовой в кухне, сауной, хозяйской спальней и детскими

D2570 Проект дома с входом с угла здания, террасами, кладовой в кухне, сауной, хозяйской спальней и детскими

Сравнить проект В избранное
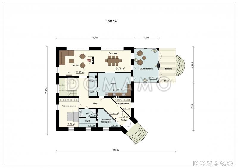
Проект дома с входом с угла здания, террасами, кладовой в кухне, сауной, хозяйской спальней и детскими / 1
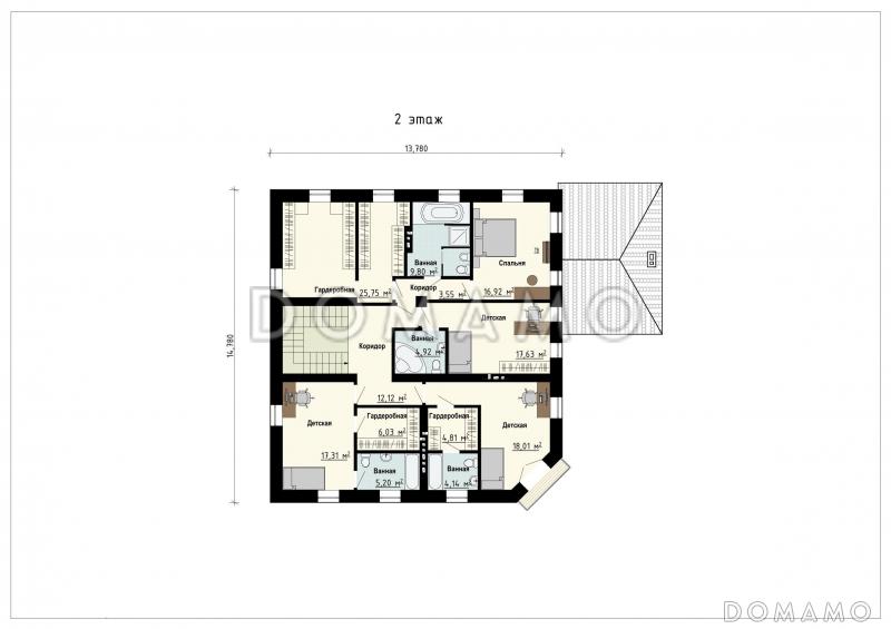
Проект дома с входом с угла здания, террасами, кладовой в кухне, сауной, хозяйской спальней и детскими / 2
Проект дома с входом с угла здания, террасами, кладовой в кухне, сауной, хозяйской спальней и детскими / 3
Проект дома с входом с угла здания, террасами, кладовой в кухне, сауной, хозяйской спальней и детскими / 1
Проект дома с входом с угла здания, террасами, кладовой в кухне, сауной, хозяйской спальней и детскими / 2
Проект дома с входом с угла здания, террасами, кладовой в кухне, сауной, хозяйской спальней и детскими / 3
D2570
354 м²
Подготовка проекта:
Готов к отправке
Стоимость проекта
Купить проект
Задайте вопросы по проекту нашему архитектору
8 (800) 200-28-83
Время работы: пн-вс: с 9:00 до 20:00
Задать вопрос по проекту

Технические характеристики
Общие
Материал стен
Кирпич
Общая площадь
354 м²
Жилая площадь
114 м²
Площадь застройки
251 м²
Приведенная площадь
313.645 м²
Количество жилых комнат/спален
5
Этажи
2 этажа
Гараж
Нет гаража
Подвал / цокольный этаж
Без подвала
Длина дома
21.085 м
Ширина дома
15.45 м
Кровля
Натуральная черепица
Облицовка внешних стен
Деревянная вагонка
,
Мокрая штукатурка
Толщина несущих наружных стен
380 мм
Межэтажные перекрытия
По деревянным балкам
Фундамент
Монолитная ж/бетонная плита
Терраса
Терраса открытая
,
Терраса крытая
Дополнительные
Окна
Панорамные окна
,
Окна с французским балконом
Камин
Есть
Сауна/баня внутри
Есть
Площадь гостиной
26.53 м²
Площадь кухни
24.33 м²
Количество санузлов
5
Окно в ванной комнате
Есть
Котельная
Есть
Хозяйский санузел
Есть
Хозяйская гардеробная
Есть
Кладовая
5
Планы помещений
Фасады
Описание проекта
Компания Domamo предлагает проект дома с входом с угла здания, террасами, кладовой в кухне, сауной, хозяйской спальней и детскими D2570. Общая площадь - 354 м2, размер - 21.085х15.45 м. Фундамент - монолитная ж/бетонная плита, кровля - натуральная черепица, внешняя отделка - деревянная вагонка мокрая штукатурка. Для заказа проекта или внесения изменений свяжитесь с нами с помощью форм обратной связи на сайте или по телефону +7 (831) 231-05-02.
Категории проекта: для постоянного проживания кирпич современные от 300 до 400 кв.м в европейском стиле с террасой из кирпича с террасой готовые загородные из кирпича двухэтажные из кирпича двухэтажные кирпичные с котельной с котельной с баней загородные с четырехскатной крышей с камином с сауной с гардеробной элитные прямоугольные с барбекю с панорамным остеклением кирпичные с баней современные кирпичные Проекты двухэтажных домов с террасой Проекты двухэтажных домов с верандой без гаража с террасой и камином с панорамными окнами и террасой двухэтажные с сауной с 5 спальнями двухэтажные с камином двухэтажные с панорамными окнами двухэтажные в современном стиле двухэтажные без гаража современные без гаража современные с панорамными окнами современные с террасой современные большие недорогие двухэтажные недорогие кирпичные недорогие без гаража недорогие с террасой недорогие для постоянного проживания недорогие с четырехскатной крышей недорогие с панорамными окнами недорогие с изолированной кухней недорогие с баней недорогие с котельной недорогие с камином недорогие прямоугольные недорогие от 300 до 400 м2 из клееного бруса без гаража Показать все категории Скрыть категории

Похожие проекты
Состав проекта
Входит в стоимость
Цена, руб. Сроки, дней
Комплект архитектурно-строительных чертежей (АС) Входит в стоимость Готов к отправке
Разрабатывается отдельно
Цена, руб. Сроки, дней
Адаптация фундамента (изменение типа фундамента) по запросу 14 рабочих дней
Дизайн интерьера (стоимость от 2200руб. за квад.метр площади) по запросу 30 рабочих дней
Внесение изменений в проект по запросу 20 рабочих дней
Фэншуй дома 20 000 ₽ 14 рабочих дней в корзину
Фэншуй участка 15 000 ₽ 14 рабочих дней в корзину
Фэншуй полная консультация дом+участок с выездом на объект 100 000 ₽ 30 рабочих дней в корзину
Опции проекта вы можете заказать в корзине при оформлении заказа
Отзывы покупателей
Рейтинг покупателей
0 / 5 5 5 1
На основе 1 оценок покупателей
0%
0%
0%
0%
0%
Отзывы о проекте D2570
Отзыв о проекте D2570
Чтобы оставить отзыв, пожалуйста авторизуйтесь.
Подбор строительной компании
Не знаете кому доверить строительство дома? Мы можем помочь! Подберем для вас из сотен наших партнеров несколько компаний с лучшем соотношением цена/качество под конкретно ваш запрос.
Подобрать