Главная Проекты домов Проект дома с цокольным и мансардным этажами, с круглым эркером и террасой

D2414 Проект дома с цокольным и мансардным этажами, с круглым эркером и террасой

Сравнить проект В избранное
Проект дома с цокольным и мансардным этажами, с круглым эркером и террасой / 1
Проект дома с цокольным и мансардным этажами, с круглым эркером и террасой / 2
Проект дома с цокольным и мансардным этажами, с круглым эркером и террасой / 3
Проект дома с цокольным и мансардным этажами, с круглым эркером и террасой / 1
Проект дома с цокольным и мансардным этажами, с круглым эркером и террасой / 2
Проект дома с цокольным и мансардным этажами, с круглым эркером и террасой / 3
D2414
344 м²
Технические характеристики
Общие
Материал стен
Кирпич
Общая площадь
344 м²
Приведенная площадь
301.3 м²
Количество жилых комнат/спален
5
Этажи
1 этаж + мансарда
Гараж
Нет гаража
Подвал / цокольный этаж
С окнами
Длина дома
15.3 м
Ширина дома
14.1 м
Высота в коньке
8.10 м
Кровля
Металлочерепица
Облицовка внешних стен
Мокрая штукатурка
,
Облицовка камнем
,
Облицовочный кирпич
Фундамент
Ленточный монолитный
Терраса
Терраса крытая
Дополнительные
Камин
Есть
Сауна/баня внутри
Есть
Площадь гостиной
36 м²
Площадь кухни
20 м²
Количество санузлов
5
Окно в ванной комнате
Есть
Постирочная
Есть
Хозяйский санузел
Есть
Хозяйская гардеробная
Есть
Кладовая
5
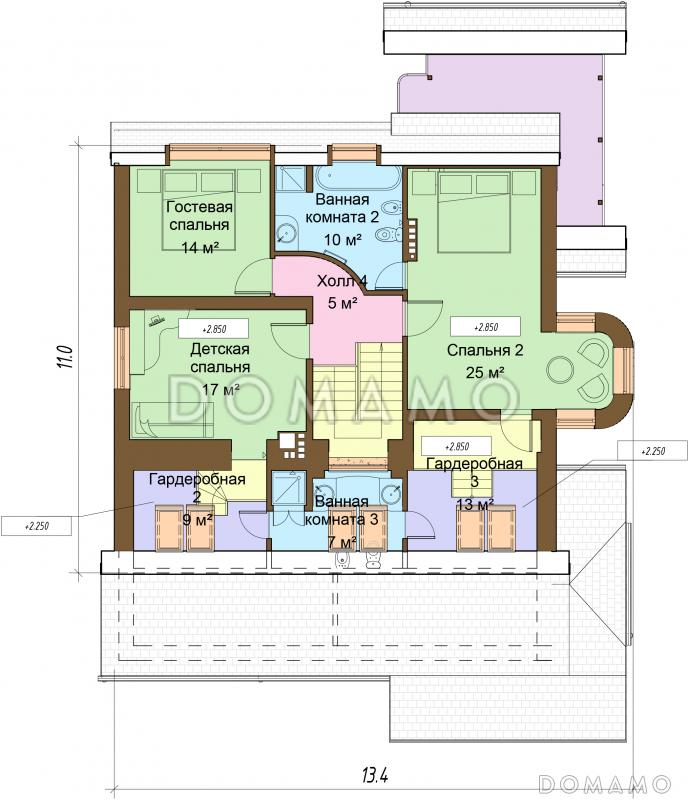
Планы помещений
Фасады
Описание проекта
Компания Domamo предлагает проект дома с цокольным и мансардным этажами, с круглым эркером и террасой D2414. Общая площадь - 344 м2, размер - 15.3х14.1 м. Фундамент - ленточный монолитный, кровля - металлочерепица, внешняя отделка - облицовочный кирпич мокрая штукатурка облицовка камнем. Для заказа проекта или внесения изменений свяжитесь с нами с помощью форм обратной связи на сайте или по телефону +7 (831) 231-05-02.
Категории проекта: с мансардой для постоянного проживания кирпич современные от 300 до 400 кв.м кирпичные дома с мансардой в европейском стиле с эркером кирпичные дома с эркером с террасой из кирпича с террасой готовые с цокольным этажом загородные из кирпича одноэтажные из кирпича одноэтажные из кирпича с мансардой одноэтажные кирпичные с цоколем одноэтажные с мансардой кирпичные с цокольным этажом одноэтажные с цокольным этажом с баней с цокольным этажом и мансардой загородные с камином с сауной с гардеробной прямоугольные кирпичные с баней с эркером и мансардой современные кирпичные Проекты одноэтажных домов с эркером Проекты одноэтажных домов с террасой Типовые проекты загородных одноэтажных домов Проекты одноэтажных домов с баней без гаража одноэтажные без гаража с террасой и камином облицованные кирпичом с мансардой и террасой полутораэтажные одноэтажные шале каменные полутораэтажные из кирпича недорогие с 5 спальнями с мансардой с баней с мансардой с камином с мансардой современные с мансардой прямоугольные с мансардой готовые с мансардой для постоянного проживания с мансардой элитные готовые для постоянного проживания с камином без гаража с баней с изолированной кухней современные прямоугольные с большой гостиной одноэтажные с мансардой для постоянного проживания одноэтажные с мансардой с большой кухней одноэтажные с мансардой с изолированной кухней одноэтажные с мансардой современные современные без гаража современные с террасой современные большие современные с подвалом недорогие с мансардой недорогие кирпичные недорогие без гаража недорогие с террасой недорогие для постоянного проживания недорогие с изолированной кухней недорогие с баней недорогие с камином недорогие прямоугольные недорогие от 300 до 400 м2 из клееного бруса без гаража Показать все категории Скрыть категории

Похожие проекты
Состав проекта
Входит в стоимость
Цена, руб. Сроки, дней
Комплект архитектурно-строительных чертежей (АС) Входит в стоимость Готов к отправке
Готово к продаже
Цена, руб. Сроки, дней
Паспорт рабочего проекта 5 000 ₽ Готов к отправке в корзину
Инженерные разделы: ВК + ОВ + ЭО 12 000 ₽ Готов к отправке в корзину
Разрабатывается отдельно
Цена, руб. Сроки, дней
Адаптация фундамента (изменение типа фундамента) по запросу 14 рабочих дней
Дизайн интерьера (стоимость от 2200руб. за квад.метр площади) по запросу 30 рабочих дней
Внесение изменений в проект по запросу 20 рабочих дней
Фэншуй дома 20 000 ₽ 14 рабочих дней в корзину
Фэншуй участка 15 000 ₽ 14 рабочих дней в корзину
Фэншуй полная консультация дом+участок с выездом на объект 100 000 ₽ 30 рабочих дней в корзину
Опции проекта вы можете заказать в корзине при оформлении заказа
Предложения строителей Выбрать регион
Минимальная
10 545 500 ₽
Стандарт
12 955 900 ₽
Под чистовую отделку
16 872 800 ₽
Показать подробные комплектации
Минимальная
25 098 290 ₽
Стандарт
29 527 400 ₽
Под чистовую отделку
38 385 620 ₽
Показать подробные комплектации
Минимальная
12 341 248 ₽
Стандарт
18 126 208 ₽
Под чистовую отделку
28 539 136 ₽
Показать подробные комплектации
Минимальная
12 073 091 ₽
Стандарт
13 862 813 ₽
Под чистовую отделку
17 750 185 ₽
Показать подробные комплектации
Минимальная
5 346 583 ₽
Стандарт
6 620 901 ₽
Под чистовую отделку
7 969 068 ₽
Показать подробные комплектации
Подбор строительной компании
Не знаете кому доверить строительство дома? Мы можем помочь! Подберем для вас из сотен наших партнеров несколько компаний с лучшем соотношением цена/качество под конкретно ваш запрос.
Подобрать
Посмотреть еще 20 компаний Свернуть
Отзывы покупателей
Рейтинг покупателей
0 / 5 5 5 1
На основе 1 оценок покупателей
0%
0%
0%
0%
0%
Отзывы о проекте D2414
Отзыв о проекте D2414
Чтобы оставить отзыв, пожалуйста авторизуйтесь.
Подбор строительной компании
Не знаете кому доверить строительство дома? Мы можем помочь! Подберем для вас из сотен наших партнеров несколько компаний с лучшем соотношением цена/качество под конкретно ваш запрос.
Подобрать