Главная Проекты домов Проект лаконичного мансардного дома со строгой отделкой

D220 Проект лаконичного мансардного дома со строгой отделкой

Сравнить проект В избранное
Проект лаконичного мансардного дома со строгой отделкой / 1
Проект лаконичного мансардного дома со строгой отделкой / 1
D220
170 м²
Подготовка проекта:
3 рабочих дня
Стоимость проекта
Купить проект
Задайте вопросы по проекту нашему архитектору
8 (800) 200-28-83
Время работы: пн-вс: с 9:00 до 20:00
Задать вопрос по проекту

Технические характеристики
Общие
Материал стен
Газобетон
Общая площадь
170 м²
Жилая площадь
89.0 м²
Площадь застройки
120.7 м²
Приведенная площадь
164.1 м²
Количество жилых комнат/спален
5
Этажи
1 этаж + мансарда
Гараж
Нет гаража
Подвал / цокольный этаж
Без подвала
Длина дома
12.3 м
Ширина дома
8.3 м
Высота в коньке
8.8 м
Кровля
Гибкая черепица
Облицовка внешних стен
Деревянная вагонка
,
Мокрая штукатурка
Толщина несущих наружных стен
400 мм
Межэтажные перекрытия
По деревянным балкам
Внутренние не несущие перегородки
Газобетонные
Фундамент
Малозаглубленные ростверки
Терраса
Терраса крытая
Дополнительные
Мансардные окна
Есть
Камин
Есть
Сауна/баня внутри
Нет
Площадь гостиной
22 м²
Площадь кухни
15.6 м²
Количество санузлов
2
Окно в ванной комнате
Есть
Котельная
Есть
Кабинет
Есть
Кладовая
1
Дом для узких участков
Есть
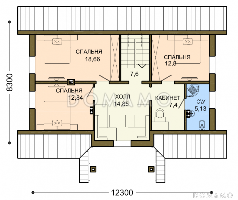
Планы помещений
Фасады
Описание проекта

Проект двухэтажного мансардного дома из пенобетона с оригинальными деревянными элементами экстерьера, сочетанием деревянной вагонки и штукатурки в отделке фасада. Прямоугольная форма здания (12×8 м) позволяет оптимально использовать площадь участка. Проектом предусмотрены 4 спальни и кабинет с мансардным окном, а также раздельные помещения кухни и гостиной с камином. В технической зоне достаточно места для кладовой и котельной, а также для просторного санузла на каждом этаже.

Ключевые особенности:

  • Эргономичная компоновка жилого пространства — достаточное количество комнат для проживания большой семьи.
  • Два санузла.
  • Спальня на первом этаже для старших членов семьи.
  • Отдельная техническая зона с помещениями для котельной.
  • Оригинальная фасадная отделка.
Категории проекта: с мансардой для постоянного проживания пенобетон современные от 100 до 200 кв.м в европейском стиле с террасой из пеноблоков с мансардой из газобетона готовые из газобетона с мансардой одноэтажные с мансардой одноэтажные с котельной с котельной одноэтажные из газобетона из газосиликатных блоков для узкого участка с мансардой до 200 кв.м с двухскатной крышей загородные из керамзитобетонных блоков с камином прямоугольные из газобетона с террасой из блоков одноэтажные из блоков из блоков с мансардой из пеноблоков с террасой загородные из газобетона Проекты одноэтажных домов с террасой Типовые проекты загородных одноэтажных домов без гаража одноэтажные без гаража с террасой и камином с кабинетом одноэтажных из керамзитобетонных блоков с мансардой и террасой полутораэтажные одноэтажные для узких участков одноэтажные до 200 кв м недорогие из пеноблоков загородные с 5 спальнями одноэтажные с мансардными окнами с мансардой с котельной с мансардой с камином с мансардой с двухскатной крышей с мансардой современные с мансардой с мансардными окнами с мансардой прямоугольные с мансардой готовые с мансардой для постоянного проживания с мансардой узкие с мансардой до 200 кв.м одноэтажные из газобетона с террасой одноэтажные из газобетона с мансардой из газобетона до 200 кв.м из газобетона от 100 до 200 кв.м из газобетона с двухскатной крышей из газобетона современные из газобетона с котельной из газобетона прямоугольные из газобетона готовые из газобетона с камином из газобетона с большой кухней из газобетона с кабинетом из газобетона с изолированной кухней из газобетона для узких участков из газобетона узкие из газобетона недорогие из газобетона для постоянного проживания двухэтажные из газобетона без гаража двухэтажные из газобетона с террасой двухэтажные из газобетона недорогие двухэтажные из газобетона с камином двухэтажные из газобетона с кабинетом двухэтажные из газобетона с котельной двухэтажные из газобетона современные двухэтажные из газобетона с двухскатной крышей двухэтажные из газобетона для узких участков двухэтажные из газобетона до 200 кв. м двухэтажные из газобетона без подвала двухэтажные из газобетона с изолированной кухней из газобетона с мансардой современные из газобетона с мансардой с террасой из газобетона с мансардой с камином из газобетона с мансардой для постоянного проживания из газобетона с мансардой готовые из газобетона с мансардой с двухскатной крышей из газобетона с мансардой с большой кухней из газобетона с мансардой узкие из газобетона с мансардой с изолированной кухней из газобетона с мансардой прямоугольные одноэтажные с мансардой для постоянного проживания одноэтажные с мансардой с большой кухней одноэтажные с мансардой с изолированной кухней одноэтажные с мансардой современные современные без гаража современные с двухскатной крышей современные с террасой современные узкие современные от 100 до 200 кв. м из пеноблоков в современном стиле из пеноблоков с двухскатной крышей из пеноблоков прямоугольные из пеноблоков для постоянного проживания из пеноблоков недорогие из пеноблоков для узких участков из пеноблоков готовые из пеноблоков с камином из пеноблоков от 100 до 200 м2 из пеноблоков узкие из пеноблоков с большой кухней из пеноблоков с изолированной кухней недорогие с мансардой недорогие без гаража недорогие с террасой недорогие для постоянного проживания недорогие с двухскатной крышей недорогие с изолированной кухней недорогие без бани недорогие с кабинетом недорогие с котельной недорогие с мансардными окнами недорогие с камином недорогие для узких участков недорогие прямоугольные недорогие от 100 до 200 м2 из клееного бруса без гаража Показать все категории Скрыть категории

Похожие проекты
Состав проекта
Входит в стоимость
Цена, руб. Сроки, дней
Комплект архитектурно-строительных чертежей (АС) Входит в стоимость 3 рабочих дня
Готово к продаже
Цена, руб. Сроки, дней
Паспорт рабочего проекта 4 000 ₽ 3 рабочих дня в корзину
Дополнительная копия проекта формата А3 3 000 ₽ 3 рабочих дня в корзину
Две дополнительные копии проекта формата А3 + 1 паспорт рабочего проекта 10 000 ₽ 3 рабочих дня в корзину
Разрабатывается отдельно
Цена, руб. Сроки, дней
Адаптация фундамента (изменение типа фундамента) по запросу 14 рабочих дней
Дизайн интерьера (стоимость от 2200руб. за квад.метр площади) по запросу 30 рабочих дней
Внесение изменений в проект по запросу 20 рабочих дней
Фэншуй дома 20 000 ₽ 14 рабочих дней в корзину
Фэншуй участка 15 000 ₽ 14 рабочих дней в корзину
Фэншуй полная консультация дом+участок с выездом на объект 100 000 ₽ 30 рабочих дней в корзину
Опции проекта вы можете заказать в корзине при оформлении заказа
Предложения строителей Республика Башкортостан
Отзывы покупателей
Рейтинг покупателей
0 / 5 5 5 1
На основе 1 оценок покупателей
0%
0%
0%
0%
0%
Отзывы о проекте D220
Отзыв о проекте D220
Чтобы оставить отзыв, пожалуйста авторизуйтесь.
Подбор строительной компании
Не знаете кому доверить строительство дома? Мы можем помочь! Подберем для вас из сотен наших партнеров несколько компаний с лучшем соотношением цена/качество под конкретно ваш запрос.
Подобрать