Главная Проекты домов Проект дома из клееного бруса с гостиной эффектно совмещеной с зоной второго света

D2001 Проект дома из клееного бруса с гостиной эффектно совмещеной с зоной второго света

Сравнить проект В избранное
Проект дома из клееного бруса с гостиной эффектно совмещеной с зоной второго света / 1
Проект дома из клееного бруса с гостиной эффектно совмещеной с зоной второго света / 2
Проект дома из клееного бруса с гостиной эффектно совмещеной с зоной второго света / 1
Проект дома из клееного бруса с гостиной эффектно совмещеной с зоной второго света / 2
D2001
269 м²
Проект с подрядом
Артикул проекта: ЛАРГО
Компания: Ecohouse Group
Стоимость строительства
4 795 000 ₽
Заказать подробную смету
+7 (812) XXX-XX-XX Показать телефон
Задать вопрос по проекту
Технические характеристики
Общие
Материал стен
Клееный брус
Общая площадь
269 м²
Приведенная площадь
175.05 м²
Количество жилых комнат/спален
3
Этажи
2 этажа
Гараж
Нет гаража
Подвал / цокольный этаж
Без подвала
Длина дома
12.5 м
Ширина дома
9.0 м
Кровля
Металлочерепица
Облицовка внешних стен
Без облицовки
Толщина несущих наружных стен
160 мм
Межэтажные перекрытия
По деревянным балкам
Внутренние не несущие перегородки
Каркасно-обшивные
Терраса
Терраса открытая
Дополнительные
Окна
Окна до пола
,
Панорамные окна
Второй свет
Есть
Мансардные окна
Есть
Сауна/баня внутри
Есть
Площадь гостиной
18 м²
Площадь кухни
15 м²
Количество санузлов
4
Окно в ванной комнате
Есть
Хозяйский санузел
Есть
Кладовая
1
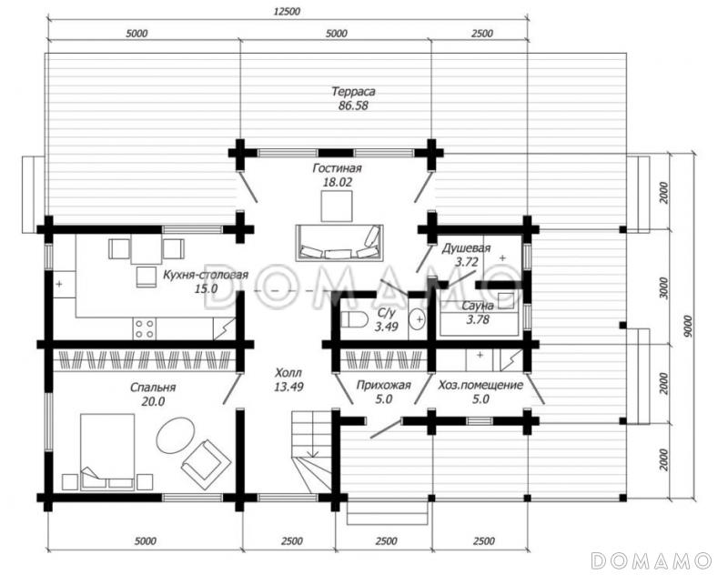
Планы помещений
Описание проекта
Компания Domamo предлагает проект дома из клееного бруса с гостиной эффектно совмещеной с зоной второго света D2001. Общая площадь - 269 м2, размер - 12.5х9.0 м. Фундамент - , кровля - металлочерепица, внешняя отделка - без облицовки. Для заказа проекта или внесения изменений свяжитесь с нами с помощью форм обратной связи на сайте или по телефону +7 (831) 231-05-02.
Категории проекта: деревянные для постоянного проживания из клееного бруса в английском стиле в скандинавском стиле от 200 до 300 кв.м в европейском стиле с эркером с террасой из бруса в стиле замка в финском стиле двухэтажные со вторым светом двухэтажные деревянные с баней с двухскатной крышей 9х12 загородные с сауной прямоугольные с панорамным остеклением двухэтажные с эркером Проекты деревянных домов с террасой Проекты деревянных домов с баней Проекты двухэтажных домов из клееного бруса Проекты двухэтажных домов с террасой Проекты двухэтажных домов с верандой без гаража Проекты домов с тремя спальнями деревянные для круглогодичного проживания с панорамными окнами и террасой двухэтажные с сауной двухэтажные с двускатной крышей двухэтажные со вторым светом двухэтажные с панорамными окнами двухэтажные с 3 спальнями двухэтажные без гаража скандинавские для постоянного проживания скандинавские без гаража скандинавские с окнами в пол скандинавские с панорамными окнами скандинавские с террасой скандинавские с большой кухней скандинавские с вторым светом скандинавские прямоугольные скандинавские 9х12 скандинавские от 200 до 300 м2 скандинавские с двухскатной крышей деревянные в скандинавском стиле деревянные с окнами в пол деревянные с вторым светом деревянные с панорамными окнами деревянные прямоугольные деревянные без гаража деревянные с подрядом деревянные без подвала деревянные с 3 спальнями деревянные с большой кухней деревянные с баней деревянные с изолированной кухней деревянные 9х12 деревянные от 200 до 300 м2 недорогие с панорамными окнами из клееного бруса проект с подрядом из клееного бруса для постоянного проживания из клееного бруса с окном в ванной комнате из клееного бруса прямоугольный из клееного бруса с мансардными окнами из клееного бруса с вторым светом из клееного бруса с окнами в пол (в гостиной) из клееного бруса с окнами в пол (на кухне) из клееного бруса с окнами в пол из клееного бруса с панорамными окнами из клееного бруса в скандинавском стиле из клееного бруса с двухскатной крышей из клееного бруса с каркасно-обшивными перегородками из клееного бруса без облицовки из клееного бруса с перекрытиями по деревянным балкам из клееного бруса с кровлей из металлочерепицы из клееного бруса с хозяйским санузлом из клееного бруса с изолированной кухней из клееного бруса с сауной/баней внутри из клееного бруса с 1 эркером из клееного бруса с выходом на терассу из гостиной из клееного бруса с выходом на терассу из кухни из клееного бруса с открытой терассой из клееного бруса без подвала из клееного бруса без гаража из клееного бруса двухэтажные из клееного бруса от 200 до 300 м2 Проекты домов с подрядом Показать все категории Скрыть категории

Похожие проекты
Состав проекта
Входит в стоимость
Цена, руб. Сроки, дней
Комплект архитектурно-строительных чертежей (АС) Входит в стоимость Готов к отправке
Разрабатывается отдельно
Цена, руб. Сроки, дней
Адаптация фундамента (изменение типа фундамента) по запросу 14 рабочих дней
Дизайн интерьера (стоимость от 2200руб. за квад.метр площади) по запросу 30 рабочих дней
Внесение изменений в проект по запросу 20 рабочих дней
Фэншуй дома 20 000 ₽ 14 рабочих дней в корзину
Фэншуй участка 15 000 ₽ 14 рабочих дней в корзину
Фэншуй полная консультация дом+участок с выездом на объект 100 000 ₽ 30 рабочих дней в корзину
Опции проекта вы можете заказать в корзине при оформлении заказа
Комплектации
Отзывы покупателей
Рейтинг покупателей
0 / 5 5 5 1
На основе 1 оценок покупателей
0%
0%
0%
0%
0%
Отзывы о проекте D2001
Отзыв о проекте D2001
Чтобы оставить отзыв, пожалуйста авторизуйтесь.
Подбор строительной компании
Не знаете кому доверить строительство дома? Мы можем помочь! Подберем для вас из сотен наших партнеров несколько компаний с лучшем соотношением цена/качество под конкретно ваш запрос.
Подобрать