Главная Проекты домов Проект дома из бруса с сауной и просторной комнатой отдыха на цокольном этаже

D1812 Проект дома из бруса с сауной и просторной комнатой отдыха на цокольном этаже

Сравнить проект В избранное
Проект дома из бруса с сауной и просторной комнатой отдыха на цокольном этаже / 1
Проект дома из бруса с сауной и просторной комнатой отдыха на цокольном этаже / 2
Проект дома из бруса с сауной и просторной комнатой отдыха на цокольном этаже / 1
Проект дома из бруса с сауной и просторной комнатой отдыха на цокольном этаже / 2
D1812
242 м²
Подготовка проекта:
Готов к отправке
Стоимость проекта
Купить проект
Задайте вопросы по проекту нашему архитектору
8 (800) 200-28-83
Время работы: пн-вс: с 9:00 до 20:00
Задать вопрос по проекту

Технические характеристики
Общие
Материал стен
Брус
Общая площадь
242 м²
Жилая площадь
122.9 м²
Приведенная площадь
242.58 м²
Количество жилых комнат/спален
4
Этажи
1 этаж + мансарда
Гараж
Нет гаража
Подвал / цокольный этаж
С окнами
Длина дома
10.5 м
Ширина дома
10.0 м
Высота в коньке
10.5 м
Кровля
Металлочерепица
Облицовка внешних стен
Без облицовки
Толщина несущих наружных стен
200 мм
Межэтажные перекрытия
По деревянным балкам
Внутренние не несущие перегородки
Каркасно-обшивные
Фундамент
Ленточный монолитный
Терраса
Терраса крытая
Дополнительные
Окна
Окна до пола
Камин
Есть
Сауна/баня внутри
Есть
Площадь гостиной
30.1 м²
Площадь кухни
15.2 м²
Количество санузлов
3
Окно в ванной комнате
Есть
Котельная
Есть
Кладовая
3
Балкон / лоджия
Балкон
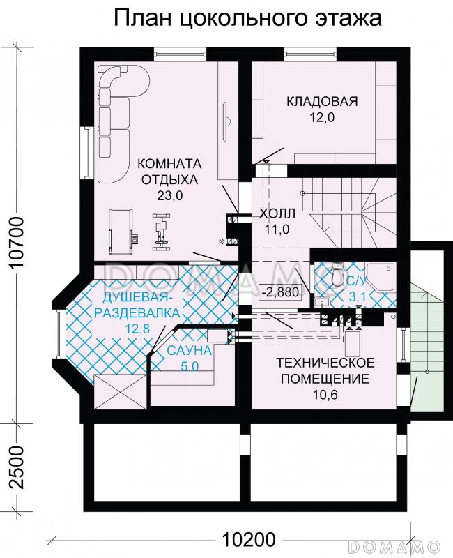
Планы помещений
Фасады
Описание проекта

Проект большого двухэтажного коттеджа из дерева в стиле Кантри, который отлично подойдет для проживания большой семьи из пяти – шести человек. В отделке здания используется деревянный брус, что придают его внешнему виду самобытную привлекательность. Перед входом в дом расположена просторная терраса, которая отлично подойдет для размещения уличной мебели. Постройка включает в себя три этажа. Цокольный этаж занимает просторная комната отдыха, где хозяева дома смогут установить бильярд или домашний кинотеатр, а также сауна с душевой. На первом этаже расположены кухня-столовая, объединенная с гостиной, гостевая комната, гардероб. Второй этаж отведен под три просторных спальных комнаты.

Ключевые особенности:

  • Просторная комната отдыха на цокольном этаже.
  • Наличие сауны в доме.
  • Спальня на первом этаже отлично подойдет для старших членов семьи.
  • Просторная крытая терраса.
Категории проекта: с мансардой деревянные для постоянного проживания из бруса от 200 до 300 кв.м 10х10 с эркером с террасой из бруса с мансардой одноэтажные дома из бруса одноэтажные дома из бруса с мансардой из бруса в немецком стиле из бруса с эркером из бруса с мансардой и эркером готовые из профилированного бруса с цокольным этажом одноэтажные с мансардой одноэтажные с цокольным этажом одноэтажные с котельной с котельной одноэтажные деревянные с баней с цокольным этажом и мансардой 10 на 10 с мансардой с двухскатной крышей 6х10 9х10 9х12 загородные с камином с сауной прямоугольные с балконом 10х12 в стиле эклектика с эркером и мансардой Проекты домов из бруса с баней загородные дома из бруса Проекты деревянных домов с мансардой Проекты деревянных домов с террасой Проекты деревянных домов с цокольным этажом Проекты деревянных домов с баней Проекты одноэтажных домов с эркером Проекты одноэтажных домов с террасой Типовые проекты загородных одноэтажных домов Проекты одноэтажных домов с баней без гаража одноэтажные без гаража с террасой и камином из бруса для постоянного проживания одноэтажные с 4 спальнями одноэтажные 10x10 с мансардой и террасой полутораэтажные деревянные для круглогодичного проживания из бруса 10x10 с 4 спальнями 9 на 12 с мансардой 10x12 с мансардой с балконом и террасой от 200 до 250 м с мансардой с баней с мансардой с котельной с мансардой с камином с мансардой с двухскатной крышей с мансардой с окнами до пола с мансардой с балконом с мансардой прямоугольные с мансардой готовые с мансардой для постоянного проживания одноэтажные с мансардой из бруса одноэтажные с мансардой для постоянного проживания одноэтажные с мансардой с большой кухней одноэтажные с мансардой в стиле эклектика одноэтажные с мансардой с балконом деревянные в стиле эклектика деревянные с окнами в пол деревянные с балконом деревянные прямоугольные деревянные с камином деревянные без гаража деревянные готовые деревянные с 4 спальнями деревянные с большой гостиной деревянные с большой кухней деревянные с баней деревянные от 200 до 300 м2 из клееного бруса без гаража из бруса готовые из бруса с окном в ванной комнате из бруса с камином из бруса прямоугольные из бруса с балконом из бруса с окнами до пола из бруса с двухскатной крышей из бруса с ленточным заглубленным монолитным фундаментом с каркасными стенами из бруса с перекрытиями по деревянным балкам из бруса без облицовки из бруса с кровлей из металлочерепицы из бруса с котельной из бруса с крытой террасой из бруса без гаража из бруса с большой террасой из бруса от 200 до 300 м2 из бруса с большой гостиной из бруса с большой кухней Показать все категории Скрыть категории

Похожие проекты
Состав проекта
Входит в стоимость
Цена, руб. Сроки, дней
Комплект архитектурно-строительных чертежей (АС) Входит в стоимость 3 рабочих дня
Готово к продаже
Цена, руб. Сроки, дней
Зеркальная версия проекта Входит в стоимость 3 рабочих дня
Паспорт рабочего проекта 5 000 ₽ 3 рабочих дня в корзину
Инженерные разделы: ВК + ОВ + ЭО 25 000 ₽ 3 рабочих дня в корзину
Дополнительная копия проекта формата А3 3 000 ₽ 3 рабочих дня в корзину
Две дополнительные копии проекта формата А3 + 1 паспорт рабочего проекта 10 100 ₽ 3 рабочих дня в корзину
Электронная копия проекта (скан распечатанной версии) 4 000 ₽ 3 рабочих дня в корзину
Разрабатывается отдельно
Цена, руб. Сроки, дней
Адаптация фундамента (изменение типа фундамента) по запросу 14 рабочих дней
Дизайн интерьера (стоимость от 2200руб. за квад.метр площади) по запросу 30 рабочих дней
Внесение изменений в проект по запросу 20 рабочих дней
Фэншуй дома 20 000 ₽ 14 рабочих дней в корзину
Фэншуй участка 15 000 ₽ 14 рабочих дней в корзину
Фэншуй полная консультация дом+участок с выездом на объект 100 000 ₽ 30 рабочих дней в корзину
Опции проекта вы можете заказать в корзине при оформлении заказа
Варианты проекта Сравнить все варианты
Избранные проекты
Избранные строители
Предложения строителей Выбрать регион
+7 (911) XXX-XX-XXПоказать телефон
Минимальная
15 282 540 ₽
Стандарт
23 287 680 ₽
Под чистовую отделку
27 168 960 ₽
Показать подробные комплектации
Минимальная
1 698 060 ₽
Стандарт
3 638 700 ₽
Под чистовую отделку
6 064 500 ₽
Показать подробные комплектации
Подбор строительной компании
Не знаете кому доверить строительство дома? Мы можем помочь! Подберем для вас из сотен наших партнеров несколько компаний с лучшем соотношением цена/качество под конкретно ваш запрос.
Подобрать
Посмотреть еще 4 компании Свернуть
Отзывы покупателей
Рейтинг покупателей
0 / 5 5 5 1
На основе 1 оценок покупателей
0%
0%
0%
0%
0%
Отзывы о проекте D1812
Отзыв о проекте D1812
Чтобы оставить отзыв, пожалуйста авторизуйтесь.
Подбор строительной компании
Не знаете кому доверить строительство дома? Мы можем помочь! Подберем для вас из сотен наших партнеров несколько компаний с лучшем соотношением цена/качество под конкретно ваш запрос.
Подобрать