Главная Проекты домов Проект дома из клееного бруса с угловой террасой

D1428 Проект дома из клееного бруса с угловой террасой

Сравнить проект В избранное
Проект дома из клееного бруса с угловой террасой / 1
Проект дома из клееного бруса с угловой террасой / 2
Проект дома из клееного бруса с угловой террасой / 3
Проект дома из клееного бруса с угловой террасой / 4
Проект дома из клееного бруса с угловой террасой / 5
Проект дома из клееного бруса с угловой террасой / 6
Проект дома из клееного бруса с угловой террасой / 1
Проект дома из клееного бруса с угловой террасой / 2
Проект дома из клееного бруса с угловой террасой / 3
Проект дома из клееного бруса с угловой террасой / 4
Проект дома из клееного бруса с угловой террасой / 5
Проект дома из клееного бруса с угловой террасой / 6
D1428
315 м²
Домокомплект
Артикул проекта: Западная лица
Компания: ГК "Приозерский лесокомбинат"
Стоимость домокомплекта
5 011 000 ₽
Заказать подробную смету
+7 (921) XXX-XX-XX Показать телефон
Задать вопрос по проекту
Технические характеристики
Общие
Материал стен
Клееный брус
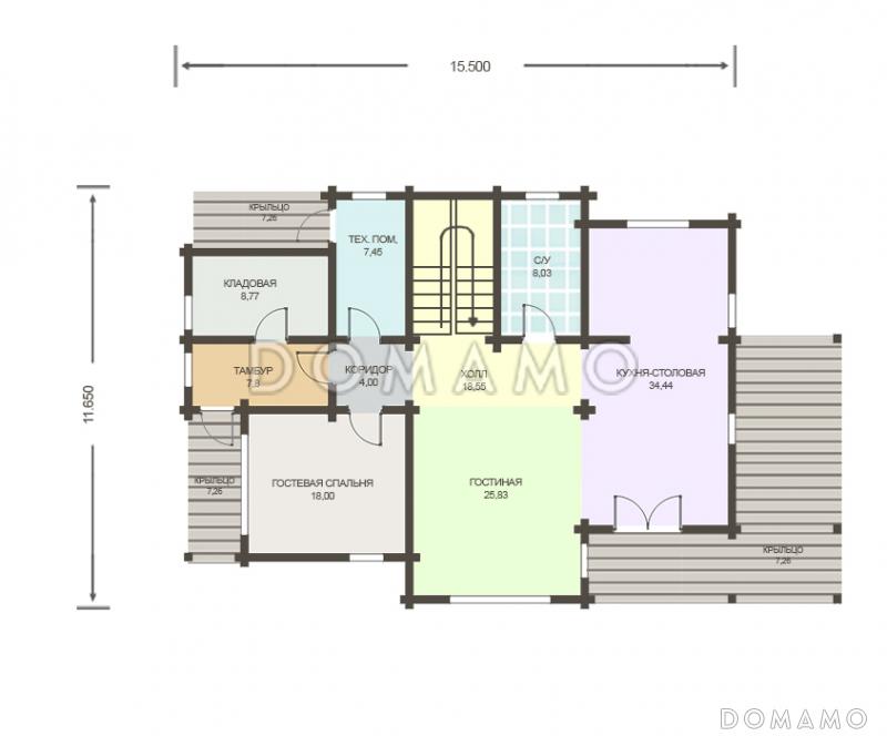
Общая площадь
315 м²
Приведенная площадь
267.46 м²
Количество жилых комнат/спален
5
Этажи
1 этаж + мансарда
Гараж
Нет гаража
Подвал / цокольный этаж
Без подвала
Длина дома
15.5 м
Ширина дома
11.6 м
Облицовка внешних стен
Без облицовки
Толщина несущих наружных стен
166 мм
Межэтажные перекрытия
По деревянным балкам
Внутренние не несущие перегородки
Каркасно-обшивные
Терраса
Терраса крытая
Дополнительные
Второй свет
Есть
Сауна/баня внутри
Нет
Площадь гостиной
25.8 м²
Площадь кухни
34.4 м²
Количество санузлов
3
Окно в ванной комнате
Есть
Котельная
Есть
Хозяйский санузел
Есть
Хозяйская гардеробная
Есть
Кладовая
3
Балкон / лоджия
Балкон
Планы помещений
Описание проекта
Компания Domamo предлагает проект дома из клееного бруса с угловой террасой D1428. Общая площадь - 315 м2, размер - 15.5х11.6 м. Фундамент - , кровля - , внешняя отделка - без облицовки. Для заказа проекта или внесения изменений свяжитесь с нами с помощью форм обратной связи на сайте или по телефону +7 (831) 231-05-02.
Категории проекта: с мансардой деревянные для постоянного проживания из клееного бруса от 300 до 400 кв.м с эркером с террасой одноэтажные с мансардой одноэтажные с котельной с котельной со вторым светом одноэтажные деревянные загородные с гардеробной с балконом в русском стиле с эркером и мансардой Проекты деревянных домов с мансардой Проекты деревянных домов с террасой Проекты домов из клееного бруса с мансардой Проекты одноэтажных домов из клееного бруса Проекты одноэтажных домов с эркером Проекты одноэтажных домов с террасой Типовые проекты загородных одноэтажных домов без гаража одноэтажные без гаража с мансардой и террасой полутораэтажные деревянные для круглогодичного проживания с балконом и террасой с 5 спальнями сложной формы с мансардой с котельной с мансардой со вторым светом с мансардой с балконом с мансардой сложной формы с мансардой для постоянного проживания с мансардой элитные со вторым светом одноэтажные с мансардой из клееного бруса одноэтажные с мансардой для постоянного проживания одноэтажные с мансардой со вторым светом одноэтажные с мансардой с большой кухней одноэтажные с мансардой в русском стиле одноэтажные с мансардой с балконом деревянные в русском стиле деревянные с вторым светом деревянные с балконом деревянные без гаража деревянные домокомплекты деревянные без подвала деревянные с большой кухней деревянные от 300 до 400 м2 в русском стиле без гаража в русском стиле с террасой в русском стиле с балконом в русском стиле для постоянного проживания в русском стиле без бани в русском стиле с котельной из клееного бруса домокомплект из клееного бруса для постоянного проживания из клееного бруса с окном в ванной комнате из клееного бруса сложной формы из клееного бруса с балконом из клееного бруса с вторым светом из клееного бруса в русском стиле из клееного бруса в скандинавском стиле из клееного бруса с многощипцовой крышей из клееного бруса с каркасно-обшивными перегородками из клееного бруса без облицовки из клееного бруса с перекрытиями по деревянным балкам из клееного бруса с хозяйской гардеробной из клееного бруса с хозяйским санузлом из клееного бруса с котельной из клееного бруса с 2 эркерами из клееного бруса с выходом на терассу из гостиной из клееного бруса с выходом на терассу из кухни из клееного бруса с крытой терассой из клееного бруса без подвала из клееного бруса без гаража одноэтажные из клееного бруса с мансардой из клееного бруса от 300 до 400 м2 Показать все категории Скрыть категории

Похожие проекты
Состав проекта
Входит в стоимость
Цена, руб. Сроки, дней
Комплект архитектурно-строительных чертежей (АС) Входит в стоимость Готов к отправке
Разрабатывается отдельно
Цена, руб. Сроки, дней
Адаптация фундамента (изменение типа фундамента) по запросу 14 рабочих дней
Дизайн интерьера (стоимость от 2200руб. за квад.метр площади) по запросу 30 рабочих дней
Внесение изменений в проект по запросу 20 рабочих дней
Фэншуй дома 20 000 ₽ 14 рабочих дней в корзину
Фэншуй участка 15 000 ₽ 14 рабочих дней в корзину
Фэншуй полная консультация дом+участок с выездом на объект 100 000 ₽ 30 рабочих дней в корзину
Опции проекта вы можете заказать в корзине при оформлении заказа
Отзывы покупателей
Рейтинг покупателей
0 / 5 5 5 1
На основе 1 оценок покупателей
0%
0%
0%
0%
0%
Отзывы о проекте D1428
Отзыв о проекте D1428
Чтобы оставить отзыв, пожалуйста авторизуйтесь.
Подбор строительной компании
Не знаете кому доверить строительство дома? Мы можем помочь! Подберем для вас из сотен наших партнеров несколько компаний с лучшем соотношением цена/качество под конкретно ваш запрос.
Подобрать