Главная Проекты домов Проект роскошного особняка из кирпича с бассейном на первом этаже

D1362 Проект роскошного особняка из кирпича с бассейном на первом этаже

Сравнить проект В избранное
Проект роскошного особняка из кирпича с бассейном на первом этаже / 1
Проект роскошного особняка из кирпича с бассейном на первом этаже / 2
Проект роскошного особняка из кирпича с бассейном на первом этаже / 1
Проект роскошного особняка из кирпича с бассейном на первом этаже / 2
D1362
1377 м²
Подготовка проекта:
Готов к отправке
Стоимость проекта
Купить проект
Задайте вопросы по проекту нашему архитектору
8 (800) 200-28-83
Время работы: пн-вс: с 9:00 до 20:00
Задать вопрос по проекту

Технические характеристики
Общие
Материал стен
Кирпич
Общая площадь
1377 м²
Площадь застройки
612.5 м²
Приведенная площадь
1225.73 м²
Количество жилых комнат/спален
7
Этажи
2 этажа + мансарда
Гараж
Нет гаража
Количество машин
2
Подвал / цокольный этаж
С окнами
Длина дома
32.0 м
Ширина дома
23.7 м
Облицовка внешних стен
Мокрая штукатурка
,
Облицовка камнем
Толщина несущих наружных стен
510 мм
Межэтажные перекрытия
Монолитные
Внутренние не несущие перегородки
Кирпичные
Фундамент
Монолитная ж/бетонная плита
Терраса
Терраса крытая
Дополнительные
Окна
Окна до пола
,
Панорамные окна
Второй свет
Есть
Мансардные окна
Есть
Камин
Есть
Сауна/баня внутри
Есть
Бассейн
Есть
Площадь гостиной
49.9 м²
Площадь кухни
19.6 м²
Количество санузлов
7
Окно в ванной комнате
Есть
Котельная
Есть
Кабинет
Есть
Постирочная
Есть
Спортзал / детский / игровой зал
Есть
Хозяйский санузел
Есть
Кладовая
10
Зимний сад
Есть
Балкон / лоджия
Балкон
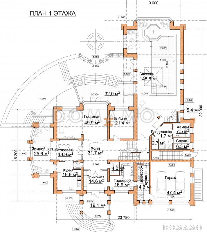
Планы помещений
Фасады
Описание проекта

Проект особняка в стиле эклектика, который понравится любителям колоритной архитектуры. Геометричность форм строения, лаконично совмещенная с витыми перегородками и массивными колоннами, делает его внешний вид элегантным, но не вычурным.

На цокольном этаже коттеджа располагается просторная комната, где можно оборудовать библиотеку или же домашний кинотеатр, винный погреб и различные технические помещения. Поднявшись на первый этаж, мы окажемся в холле, откуда можно пройти в гостиную или объединенную кухню-столовую и далее — в зимний сад. Здесь же находится хозяйский кабинет, сауна с душем и большой бассейн. Второй этаж отведен под четыре спальных комнаты, в одной из которых предусмотрена собственная гардеробная и выход на балкон. На мансардном этаже помещение, которые можно отвести под игровую или спорт зал, также гостевая комната и еще один кабинет.

Преимущества и особенности:

  • В проекте предусмотрено наличие гаража с парковочными местами для двух автомобилей. 

  • На цокольном этаже находится большая зона отдыха, где хозяева смогут проводить свободное время.

Категории проекта: с мансардой для постоянного проживания кирпич от 500 кв.м кирпичные дома с мансардой с эркером кирпичные дома с эркером с террасой из кирпича с террасой готовые с цокольным этажом загородные из кирпича двухэтажные из кирпича двухэтажные из кирпича с мансардой двухэтажные двухэтажные с мансардой кирпичные с цокольным этажом кирпичные с котельной с котельной со вторым светом с баней с цокольным этажом и мансардой с бассейном загородные с баней и бассейном с камином с сауной с балконом с зимним садом с панорамным остеклением в стиле эклектика кирпичные с баней кирпичные с бассейном двухэтажные с цокольным этажом с эркером и мансардой двухэтажные с эркером Проекты двухэтажных домов с террасой Проекты двухэтажных домов с верандой на две семьи без гаража с террасой и камином с кабинетом с мансардой и террасой особняки каменные с панорамными окнами и террасой двухэтажные с сауной с балконом и террасой большие сложной формы двухэтажные с камином двухэтажные со вторым светом двухэтажные с панорамными окнами двухэтажные с балконом двухэтажные с балконом и террасой двухэтажные с бассейном двухэтажные без гаража с мансардой с баней с мансардой с котельной с мансардой с зимним садом с мансардой с камином с мансардой с бассейном с мансардой с панорамными окнами с мансардой с окнами до пола с мансардой со вторым светом с мансардой с мансардными окнами с мансардой с балконом с мансардой сложной формы с мансардой готовые с мансардой для постоянного проживания с мансардой элитные с мансардой большие большие готовые большие в стиле эклектика большие с вторым светом большие с балконом большие сложной формы большие с камином большие с бассейном большие с окном в ванной комнате большие с панорамными окнами большие с окнами в пол большие без гаража большие с большой кухней большие с террасой большие с баней большие с прачечной большие с котельной большие с кабинетом большие с спортзалом большие с зимним садом недорогие с панорамными окнами из клееного бруса без гаража Показать все категории Скрыть категории

Похожие проекты
Состав проекта
Входит в стоимость
Цена, руб. Сроки, дней
Комплект архитектурно-строительных чертежей (АС) Входит в стоимость Готов к отправке
Инженерные разделы: ВК + ОВ Входит в стоимость Готов к отправке
Разрабатывается отдельно
Цена, руб. Сроки, дней
Адаптация фундамента (изменение типа фундамента) по запросу 14 рабочих дней
Дизайн интерьера (стоимость от 2200руб. за квад.метр площади) по запросу 30 рабочих дней
Внесение изменений в проект по запросу 20 рабочих дней
Фэншуй дома 20 000 ₽ 14 рабочих дней в корзину
Фэншуй участка 15 000 ₽ 14 рабочих дней в корзину
Фэншуй полная консультация дом+участок с выездом на объект 100 000 ₽ 30 рабочих дней в корзину
Опции проекта вы можете заказать в корзине при оформлении заказа
Отзывы покупателей
Рейтинг покупателей
0 / 5 5 5 1
На основе 1 оценок покупателей
0%
0%
0%
0%
0%
Отзывы о проекте D1362
Отзыв о проекте D1362
Чтобы оставить отзыв, пожалуйста авторизуйтесь.
Подбор строительной компании
Не знаете кому доверить строительство дома? Мы можем помочь! Подберем для вас из сотен наших партнеров несколько компаний с лучшем соотношением цена/качество под конкретно ваш запрос.
Подобрать