Главная Проекты домов Проект кирпичного дома

D1099 Проект кирпичного дома

Сравнить проект В избранное
Проект кирпичного дома / 1
Проект кирпичного дома / 2
Проект кирпичного дома / 3
Проект кирпичного дома / 4
Проект кирпичного дома / 1
Проект кирпичного дома / 2
Проект кирпичного дома / 3
Проект кирпичного дома / 4
D1099
468 м²
Подготовка проекта:
Готов к отправке
Стоимость проекта
Купить проект
Задайте вопросы по проекту нашему архитектору
8 (800) 200-28-83
Время работы: пн-вс: с 9:00 до 20:00
Задать вопрос по проекту

Технические характеристики
Общие
Материал стен
Кирпич
Общая площадь
468 м²
Приведенная площадь
480.73 м²
Количество жилых комнат/спален
5
Этажи
2 этажа
Гараж
Нет гаража
Подвал / цокольный этаж
С окнами
Длина дома
16.0 м
Ширина дома
16.0 м
Кровля
Гибкая черепица
Облицовка внешних стен
Облицовочный кирпич
Толщина несущих наружных стен
510 мм
Межэтажные перекрытия
Сборные
Внутренние не несущие перегородки
Кирпичные
Фундамент
Ленточный монолитный
Терраса
Без террасы
Дополнительные
Окна
Окна до пола
Сауна/баня внутри
Есть
Площадь гостиной
36.3 м²
Площадь кухни
25.1 м²
Количество санузлов
5
Котельная
Есть
Постирочная
Есть
Кладовая
3
Балкон / лоджия
Балкон
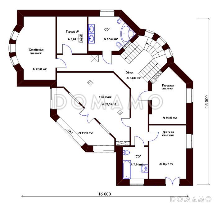
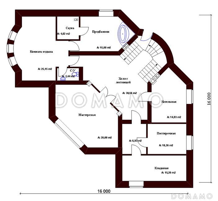
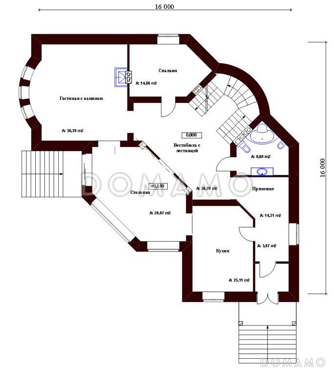
Планы помещений
Описание проекта

Проект целого дворца, но в интерпретации на современный лад, здание действительно получилось величественное в два этажа с жилым цоколем. Экстерьер особняка продуман до мелочей: на фоне белых стен резко выделяются декорированные темным кирпичом углы и элементы крыльца и балконов, перила и ограничители на них кованые, а на балконах предусмотрены кованые подставки для цветов, над главным входом металлическая эмблема отдаленно напоминает герб. Уникальность дома — его расположение по диагонали. С дополнительного входа открывается шестиугольная столовая, с ней в близости кухня и гостиная. Второй главный вход ведет в прихожую, а потом вестибюль. Лестничный пролет полукруглый, по нему можно спуститься на подземный ярус, где предусмотрено много подсобных помещений и бильярдная. Верхний этаж занимают 2 санузла, 8-угольная спальня и обычный ее аналог, совмещенная с балконом, еще детская.

Ключевые особенности:

  • наличие камина;

  • необычная планировка и лестничный пролет;

  • подсобные помещения;

  • большой балкон;

  • несколько санузлов, даже на цокольном этаже.

Категории проекта: для постоянного проживания кирпич современные от 400 до 500 кв.м в европейском стиле с эркером кирпичные дома с эркером готовые с цокольным этажом загородные из кирпича двухэтажные из кирпича двухэтажные кирпичные с цокольным этажом кирпичные с котельной с котельной с баней загородные с сауной с балконом кирпичные с баней двухэтажные с цокольным этажом двухэтажные с эркером современные кирпичные без гаража облицованные кирпичом двухэтажные с сауной с 5 спальнями большие сложной формы двухэтажные с балконом двухэтажные в современном стиле двухэтажные без гаража современные без гаража современные с окнами в пол современные без террасы современные большие современные с подвалом большие готовые большие с балконом большие сложной формы большие с окнами в пол большие без гаража большие с большой кухней большие без террасы большие с баней большие с прачечной большие с котельной из клееного бруса без гаража Показать все категории Скрыть категории

Похожие проекты
Состав проекта
Входит в стоимость
Цена, руб. Сроки, дней
Комплект архитектурно-строительных чертежей (АС) Входит в стоимость Готов к отправке
Инженерные разделы: ВК + ОВ Входит в стоимость Готов к отправке
Разрабатывается отдельно
Цена, руб. Сроки, дней
Адаптация фундамента (изменение типа фундамента) по запросу 14 рабочих дней
Дизайн интерьера (стоимость от 2200руб. за квад.метр площади) по запросу 30 рабочих дней
Внесение изменений в проект по запросу 20 рабочих дней
Фэншуй дома 20 000 ₽ 14 рабочих дней в корзину
Фэншуй участка 15 000 ₽ 14 рабочих дней в корзину
Фэншуй полная консультация дом+участок с выездом на объект 100 000 ₽ 30 рабочих дней в корзину
Опции проекта вы можете заказать в корзине при оформлении заказа
Отзывы покупателей
Рейтинг покупателей
0 / 5 5 5 1
На основе 1 оценок покупателей
0%
0%
0%
0%
0%
Отзывы о проекте D1099
Отзыв о проекте D1099
Чтобы оставить отзыв, пожалуйста авторизуйтесь.
Подбор строительной компании
Не знаете кому доверить строительство дома? Мы можем помочь! Подберем для вас из сотен наших партнеров несколько компаний с лучшем соотношением цена/качество под конкретно ваш запрос.
Подобрать