Главная Проекты бани Проект бани с террасой и бильярдной

D148 Проект бани с террасой и бильярдной

Сравнить проект В избранное
Проект бани с террасой и бильярдной   / 1
Проект бани с террасой и бильярдной   / 1
D148
84 м²
Подготовка проекта:
Готов к отправке
Стоимость проекта
Купить проект
Задайте вопросы по проекту нашему архитектору
8 (800) 200-28-83
Время работы: пн-вс: с 9:00 до 20:00
Задать вопрос по проекту

Технические характеристики
Общие
Материал стен
Бревно
Общая площадь
84 м²
Жилая площадь
33 м²
Количество жилых комнат/спален
1
Этажи
1 этаж + мансарда
Гараж
Нет гаража
Подвал / цокольный этаж
Без подвала
Длина дома
11.5 м
Ширина дома
7.6 м
Облицовка внешних стен
Без облицовки
Толщина несущих наружных стен
220 мм
Межэтажные перекрытия
По деревянным балкам
Внутренние не несущие перегородки
Каркасно-обшивные
Фундамент
Ленточный монолитный
Терраса
Терраса крытая
Дополнительные
Сауна/баня внутри
Есть
Площадь гостиной
20 м²
Количество санузлов
1
Бильярдная
Есть
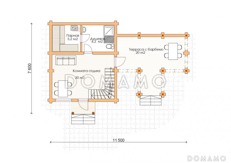
Планы помещений
Фасады
Описание проекта

Проект большой бани с мансардным этажом, выполненной в стиле русской избы, которая подойдет для отдыха всей семьи. Крыша, покрытая яркой черепицей и деревянные колонны — главные украшения всего экстерьера. 

На первом этаже располагаются парная с душевой, откуда можно пройти в комнату отдыха. Здесь же просторная терраса. Мансардный этаж включает в себя просторную бильярдную комнату. 

Преимущества и особенности:

  • На террасе легко можно расположить мебель для летнего отдыха и барбекю.


Похожие проекты
Состав проекта
Входит в стоимость
Цена, руб. Сроки, дней
Комплект архитектурно-строительных чертежей (АС) Входит в стоимость Готов к отправке
Разрабатывается отдельно
Цена, руб. Сроки, дней
Адаптация фундамента (изменение типа фундамента) по запросу 14 рабочих дней
Дизайн интерьера (стоимость от 2200руб. за квад.метр площади) по запросу 30 рабочих дней
Внесение изменений в проект по запросу 20 рабочих дней
Фэншуй дома 20 000 ₽ 14 рабочих дней в корзину
Фэншуй участка 15 000 ₽ 14 рабочих дней в корзину
Фэншуй полная консультация дом+участок с выездом на объект 100 000 ₽ 30 рабочих дней в корзину
Опции проекта вы можете заказать в корзине при оформлении заказа
Отзывы покупателей
Рейтинг покупателей
0 / 5 5 5 1
На основе 1 оценок покупателей
0%
0%
0%
0%
0%
Отзывы о проекте D148
Отзыв о проекте D148
Чтобы оставить отзыв, пожалуйста авторизуйтесь.
Подбор строительной компании
Не знаете кому доверить строительство дома? Мы можем помочь! Подберем для вас из сотен наших партнеров несколько компаний с лучшем соотношением цена/качество под конкретно ваш запрос.
Подобрать